2-к, Заневский проспект, 65а Показать на карте
Ладожская, 5 мин
Санкт-Петербург
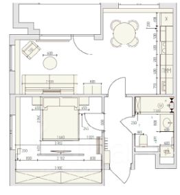
Продается 2-комн. апартамент на 7-м этаже в Апарт-отеле ''GloraX Заневский'' с сервисом 4*. Старт работы отеля - декабрь 2024 г.! Общая площадь лота составляет 43,10 кв. м, из которых 23,20 кв. м отведено под жилую. Номер апартамента - 708.Преимущества:- Апарт-отель с сервисом 4 звезды- Меблировка и техника - 2 вида доходных программ- Консьерж-сервис- Вход по ключ-карте- Прачечная для гостей на 1 этаже- Уборка номеров- Безопасная территория и изолированный внутренний двор - Pet-friendlyАпарт-отель ''GloraX Заневский'' современный отель с развитой инфраструктурой, удовлетворяющей все потребности самых взыскательных гостей. Апарт-отель ''GloraX Заневский'' располагается в одном из наиболее перспективных, районов Петербурга в 2х минутах от метро ''Ладожская'' и Ладожского вокзала, в 10 минутах от Московского вокзала и в 20 минутах от исторического центра.В апарт-отеле ''GloraX Заневский'' есть все, что необходимо для комфортной жизни, работы и отдыха. Инфраструктура, покрывающая все потребности и ожидания собственников и арендаторов. В радиусе 150 метров находятся супермаркеты с возможностью доставки продуктов прямо до дверей апартаментов.На 1000 кв. м. общественных пространств расположится уютный лобби-бар, ресторан мировой кухни на 80 человек, фитнес-зал и оборудованные коворкинги.В апартаментах ''GloraX Заневский'' выполнена современная отделка с использованием высококачественных экологичных материалов. Инновационные технологические системы, аварийные и противопожарные датчики, взаимодействие со службами быстрого реагирования гарантируют резидентам комплексную безопасность. В проекте предусмотрен подземный отапливаемый паркинг на 100 мест, куда можно спуститься на лифте прямо от дверей апартаментов.Вся информация по эксплуатации номера аккумулируется в специально разработанном приложении, не имеющем аналогов на рынке. Функциональное и удобное приложение помогает оперативно решать все возникающие вопросы в режиме реального времени. Благодаря инновационному решению по оперативным выплатам деньги от аренды поступят на ваш счет максимально быстро.Цена указана при 100% оплате или стандартной ипотеке. Узнайте подробности в Отделе продаж.
40 м2
7 / 15 этаж
Монолит
- Показать контакты
- Добавить в избранное
40 м2
7 / 15 этаж
Монолит
13 755 998
336 332 /м2
Новостройка,
дом сдан
дом сдан
