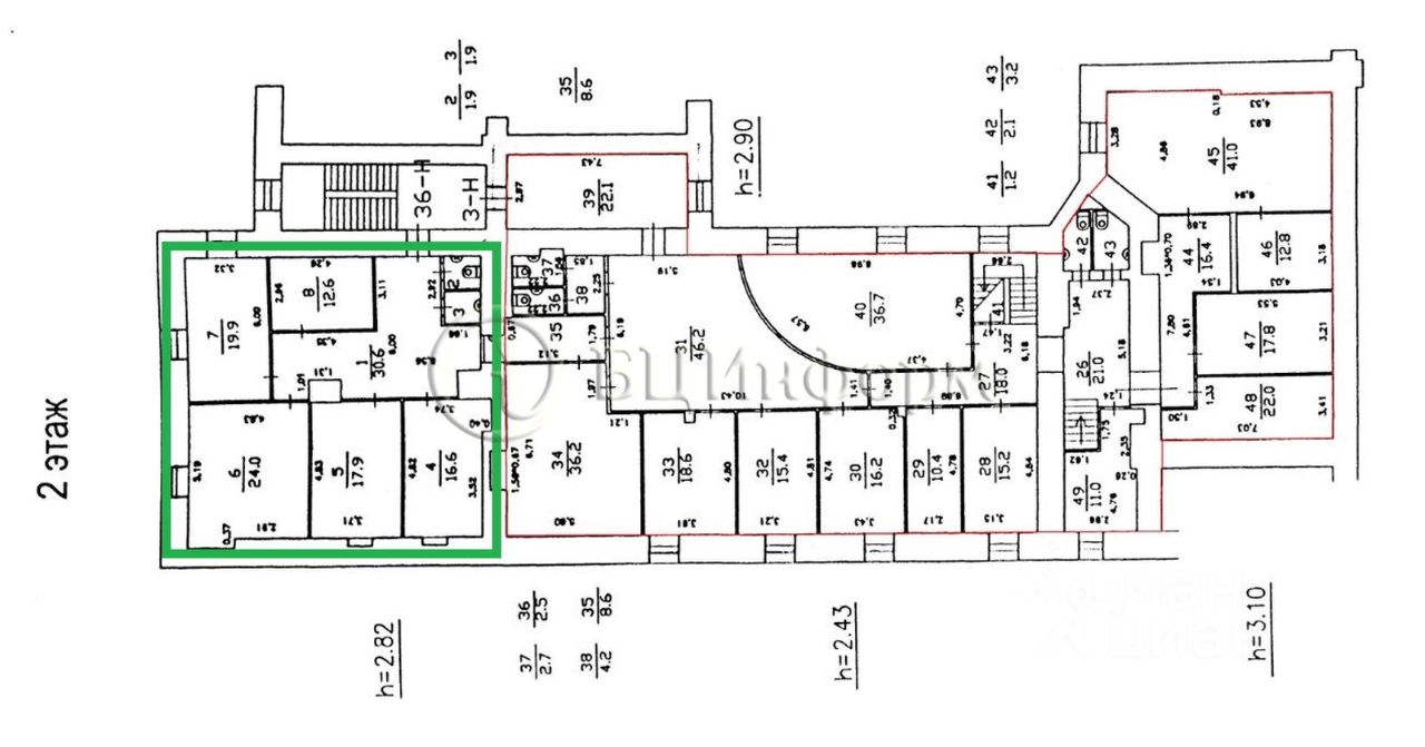
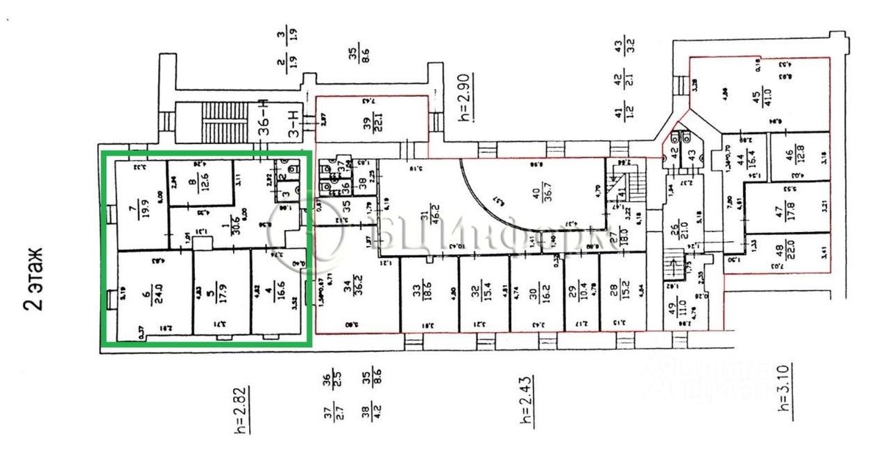
Вниманию арендаторов предлагается помещение под офис, общей площадью 125.6 кв.м.
Расположено на втором этаже Бизнес-Центра.
Кабинетная планировка. Санузел.
В хорошем состоянии. Выполнена стандартная офисная отделка.
Помещение оснащено системой кондиционирования и приточно-вытяжной вентиляцией.
В пешей доступности станции метро ''Владимирская'', ''Достоевская'', ''Лиговский Проспект''.
Готово к въезду потенциального арендатора. Договор аренды напрямую с собственником. Без скрытых комиссий и платежей.








