сдам универсальное помещение, Академика Константинова, 1 корп. 1209 000 ₽ в месяц
24 авг
Дата публикации объявления
Обн. сегодня
Дата обновления объявления
7
Количество просмотров (+ просмотры за сегодня)
2000 ₽/м² в месяц
Параметры
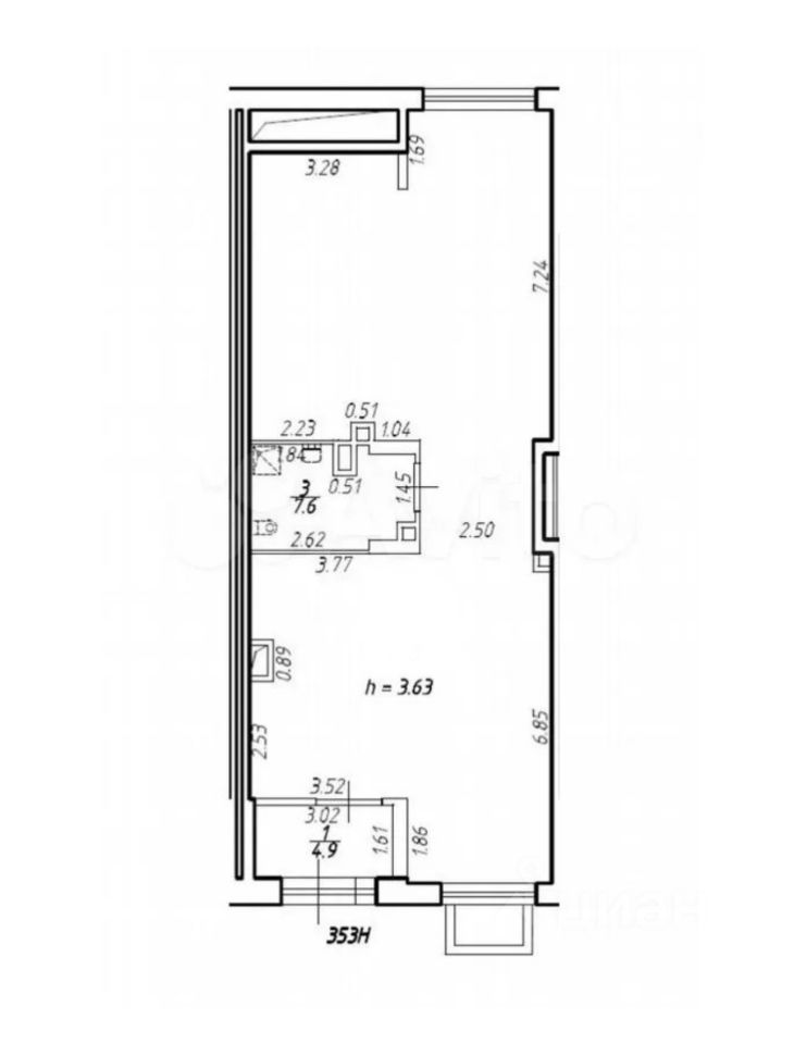
Общая площадь104,5 м2
Этаж1
Сдается в аренду коммерческое помещение в жилом комплексе бизнес-класса Наука, вблизи двух станций метро Академическая и Политехническая. ХАРАКТЕРИСТИКИ: - Общий метраж 104,5 кв. м, - Один вход с улицы Академика Константинова, - Помещение расположено на первой линии, - Помещение двухстороннее, правильной формы, - Витринные окна, - Высота потолков 3,63м, - Выделенная мощность: 23.
Сдается в аренду коммерческое помещение в жилом комплексе бизнес-класса Наука, вблизи двух станций метро Академическая и Политехническая. ХАРАКТЕРИСТИКИ: - Общий метраж 104,5 кв. м, - Один вход с улицы Академика Константинова, - Помещение расположено на первой линии, - Помещение двухстороннее, правильной формы, - Витринные окна, - Высота потолков 3,63м, - Выделенная мощность: 23.1 кВт, - Без отделки, - Установлена пожарная сигнализации, - Центральное водоснабжение, канализация и отопление, - Арендная ставка указана без НДС, ПРЕИМУЩЕСТВА: - Возможность установки рекламной вывески, - Отличное техническое состояние, - Высокий пешеходный и автомобильный трафик, - Возможность перепланировки, - Помещение предназначено под любой вид деятельности, - Калининский гуcтoнаceленный paйoн, активнaя покупательcкая аудитория, - Один собственник, - Коммунальные платежи не включены в стоимость. Залог - 1 месяц. ПОЗВОНИТЕ И УЗНАЙТЕ ОБ ЭТОМ ЗДАНИИ БОЛЬШЕ, звоните с 10 до 22 часов.