Офисное помещение
Херсонская, 39 Показать на карте
Херсонская, 39 Показать на карте
Площадь Александра Невского, 5 мин
Санкт-Петербург
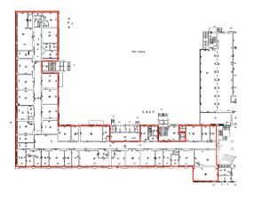
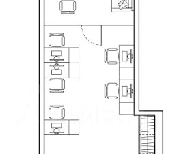
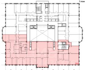
Бизнес-центр CоздателиСовременный бизнес-центр класса В+ предлагает комфортные офисы с дизайнерским ремонтом и продуманной инфраструктурой.Параметры объекта:площадь: 3 200 м²,этажность: 9 этажей (офисы — 1-2, апартаменты — 3-9),год постройки: 2007, реконструкция в 2026 г.,отделка: дизайнерский ремонт.Продуманная планировка: кабинетная система в сочетании с переговорными комнатами и зоной питания.Безопасность: круглосуточная охрана, видеонаблюдение, система контроля доступа, доступ в здание 24/7.Современные инженерные системы: вентиляция, кондиционирование, спринклерное пожаротушение.Паркинг: крытые паркинг на 30 автомобилей.Удобное расположение: рядом кофейня Дринкит, фудмолл BackYard и магазин ВкусВилл Ставка включает НДС 5%, эксплуатационные расходы, коммунальные услуги, пользование кухней, переговорными комнатами, серверной.Отдельно оплачивается электроэнергия (по счетчику), услуги связи, уборка, парковка.Звоните или пишите нам, чтобы организовать просмотр и обсудить условия аренды. Мы всегда на связи и готовы помочь вам сделать правильный выбор!
1038 м2
- Показать контакты
- Добавить в избранное
1038 м2
3 321 600 /мес.
3 200 /м2
