1-к, Адмирала Трибуца, 5 Показать на карте
Красносельский район
Санкт-Петербург
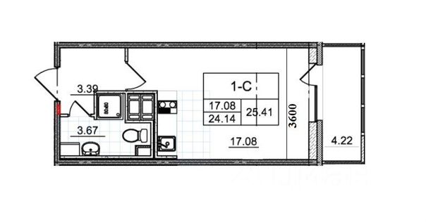
ПРЯМАЯ ПРОДАЖА. Безопасная сделка. О КВАРТИРЕ:Продается квартира с МЕБЕЛЬЮ и ТЕХНИКОЙ, ПАНОРАМНЫЙ вид из окон на Финский залив! Квартира в отличном состоянии, ЗАЕЗЖАЙ И ЖИВИ, произведен ремонт евро-стандарт. Общая площадь квартиры 24,2 кв.м, плюс застекленная лоджия 4,0 кв.м. Квартира расположена на 11-м этаже. Один собственник, взрослый человек. Собственность более пяти лет. Квартира без обременений, без задолженности, без использования мат.капитала, без перепланировок. О ДОМЕ: Дом кирпично-монолитный, 2013 г.п, современной застройки, по индивидуальному проекту.ИНФРАСТРУКТУРА:Дом расположен в районе очень развитой инфраструктуры, в шаговой доступности школы, дет.сады, гимназия, дет.спорт. ТЦ Жемчужная плаза. На первом этаже дома расположены кафе, рестораны, множество магазинов различного назначения. В ближайшем расположении мед.центр, салон красоты, офисы страхования, офисы банков, пункт выдачи OZON, аптеки, магазины Вкус Вилл и многое другое.ТРАНСПОРТ:20 минут транспортом до любой из четырех станций метро, Юго-Западная, пр. Ветеранов, Автово, Ленинский пр, До метро постоянно курсирует городской транспорт.ОТДЫХ.Район насыщен парками отдыха. В шаговой доступности Полежаевский парк, Южно-Приморский, парк Новознаменка. 10 мин. пешком до наб. Финского залива. Совсем рядом можно прогуляться по наб. Дудергофского канала, неподалеку Метисов канал. Для детей предусмотрены атракционы. До красивейших фонтанов Петергофа 15 мин.транспортом. Квартира достойна рассмотрения. Арт. 132707391
24 м2
11 / 19 этаж
Кирпич - монолит
- Показать контакты
- Добавить в избранное
24 м2
11 / 19 этаж
Кирпич - монолит
6 750 000
278 926 /м2
