5-к, Краснодонская, 27 корп. 2 Показать на карте
Красногвардейский район
Санкт-Петербург
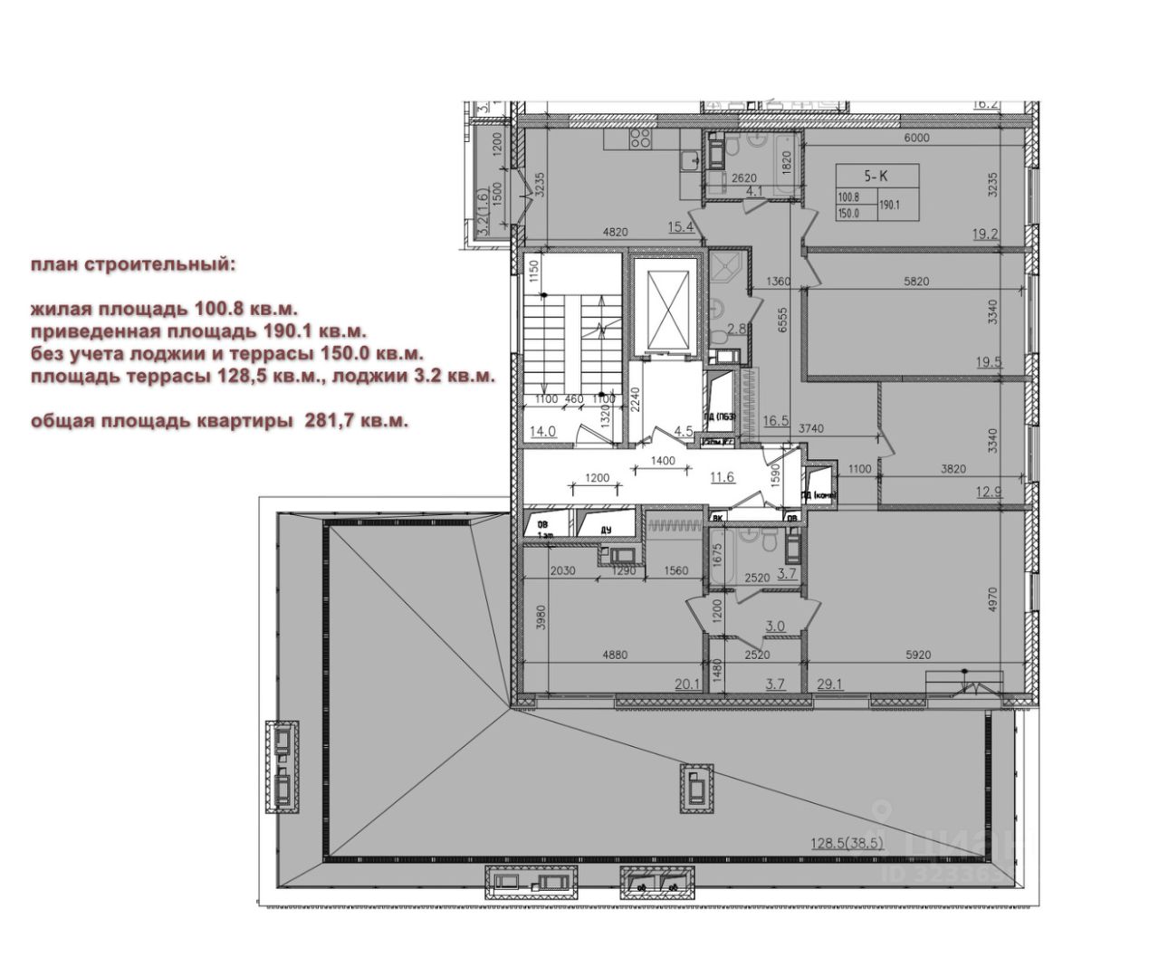
Арт. 132874022 Помещение свободного назначения на Охте на первом этаже кирпичного дома, занимает весь первый этаж по периметру здания, отдельный тамбур с лестницы позволяет организовать выделение четырех или более отдельных жилых квартир, которые выделены отдельными кадастрами в самостоятельные объекты, в помещении сделан косметический ремонт: отремонтированы полы, сантехника, заменены окна, установлены решетки, отремонтированы потолки. Перед домом есть парковка.Высота потолков 3 метра. Ранее использовалось под детский развивающий центр.Дом 1917 года расположен вблизи от центра города, в зеленом районе.Возможен перевод в нежилой фонд. Дом малонаселен .Рядом детский сад, школа.
318 м2
1 / 4 этаж
Кирпич
- Показать контакты
- Добавить в избранное
318 м2
1 / 4 этаж
Кирпич
46 200 000
145 009 /м2
