4-к, Бакунина проспект, 33 Показать на карте
Площадь Александра Невского, 10 мин
Санкт-Петербург
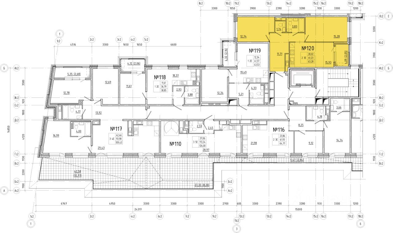
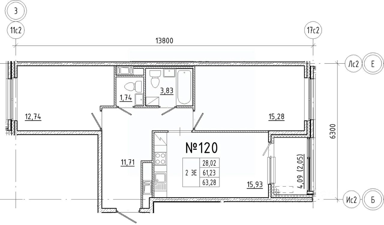
Объект забронирован клиентом!4-комн. квартира в ЖК ''BAKUNINA 33'' на 8 этаже. Квартира без отделки, после оформления собственности можно делать ремонт. Общая площадь: 124 кв.м., жилая: 61.79 кв.м., площадь просторной кухни-столовой: 22.97 кв.м. Квартира без проходных комнат, окна выходят нa три cтopoны дома. В квартире два балкона, три совмещенных санузла. Высота потолков 3.0 м. Дом монолитный, трехподъездный, высотой 9 этажей. Квартира находится во 2-й секции в корпусе 1. На этаже 5 квартир. В подъезде 1 пассажирский и 1 грузовой лифт. Начало строительства - 2 квартал 2023 года. Строительство окончено, дом сдан во 2 квартале 2025 года. Оформление сделки по договору купли-продажи. В шаговой доступности от дома имеются станции метро (расстояние по прямой): ''Площадь Александра Невского'' (700 м), ''Площадь Александра Невского 1'' (700 м), ''Площадь Александра Невского 2'' (800 м), ''Площадь Восстания'' (1.4 км), ''Новочеркасская'' (1.5 км), также недалеко от этого корпуса расположены станции метро: ''Владимирская'', ''Чернышевская'', ''Ладожская''. Клубный дом BAKUNINA 33 - новый стандарт престижной жизни в Центральном районе. В 10 минутах от Невского проспекта и в двух минутах от Синопской набережной и Невы, в благоустроенной и знакомой среде. Локация клубного дома Bakunina 33 - идеальное место для погружения в культурную и светскую жизнь Санкт-Петербурга. В 10-15 минутах на машине почти все знаковые достопримечательности города: Эрмитаж, Русский музей, Александринский и Мариинский театры, БДТ, Таврический парк Казанский собор, Спас на крови и другие величественные дворцы, соборы, музеи, ради которых в город ежегодно съезжаются тысячи гостей. Каждая линия и каждый элемент дизайна дома является частью целостной концепции. Облик здания гармоничный, классически сдержанный с выверенными пропорциями и элегантными формами. Цветовые и архитектурные решения и эркеры придают облику дома легкость, доступную лишь респектабельной классике. Фасады привлекают внимание плавными ритмичными переходами. Вертикальная разбивка колоннами визуально устремляет здание ввысь. Плоскость фасадов декорирована разными элементами из гранита. Ограждение балконов, эркеры и колонны дополнены лаконичным геометрическим орнаментом в акцентном теплом сером цвете. Первые два этажа дома облицованы натуральным гранитом тёмного оттенка. Основной объём здания - выполнен штукатурным фасадом с окраской светлыми тонами из цветовой палитры '' Традиционные цвета Санкт-Петербурга''. Верхний этаж выполнен в стиле мансарды с высотой потолков в квартирах 3,5 метра. Этим достигается цель гармоничного и сомасштабного существования в одном фронте с существующими зданиями.За венчающим карнизом располагаются балконы девятого этажа. Ограждения балконов дополнены геометрическими узорами. Закрытый внутренний двор со сквером и детской площадкой. Острова зелени с водной чашей в центре создают ощущение гармонии и умиротворения. Современная уличная мебель и освещение формируют домашнюю атмосферу уюта и представляют двор как дополн
124 м2
8 / 9 этаж
Монолит
- Показать контакты
- Добавить в избранное
124 м2
8 / 9 этаж
Монолит
81 623 000
658 250 /м2
Новостройка
