сдам торговые площади, Большой бульвар, 2б76 860 ₽ в месяц
28 окт 2023
Дата публикации объявления
Обн. 28 окт 2023
Дата обновления объявления
1
Количество просмотров (+ просмотры за сегодня)
Топ
Выделение цветом
1800 ₽/м² в месяц
Параметры
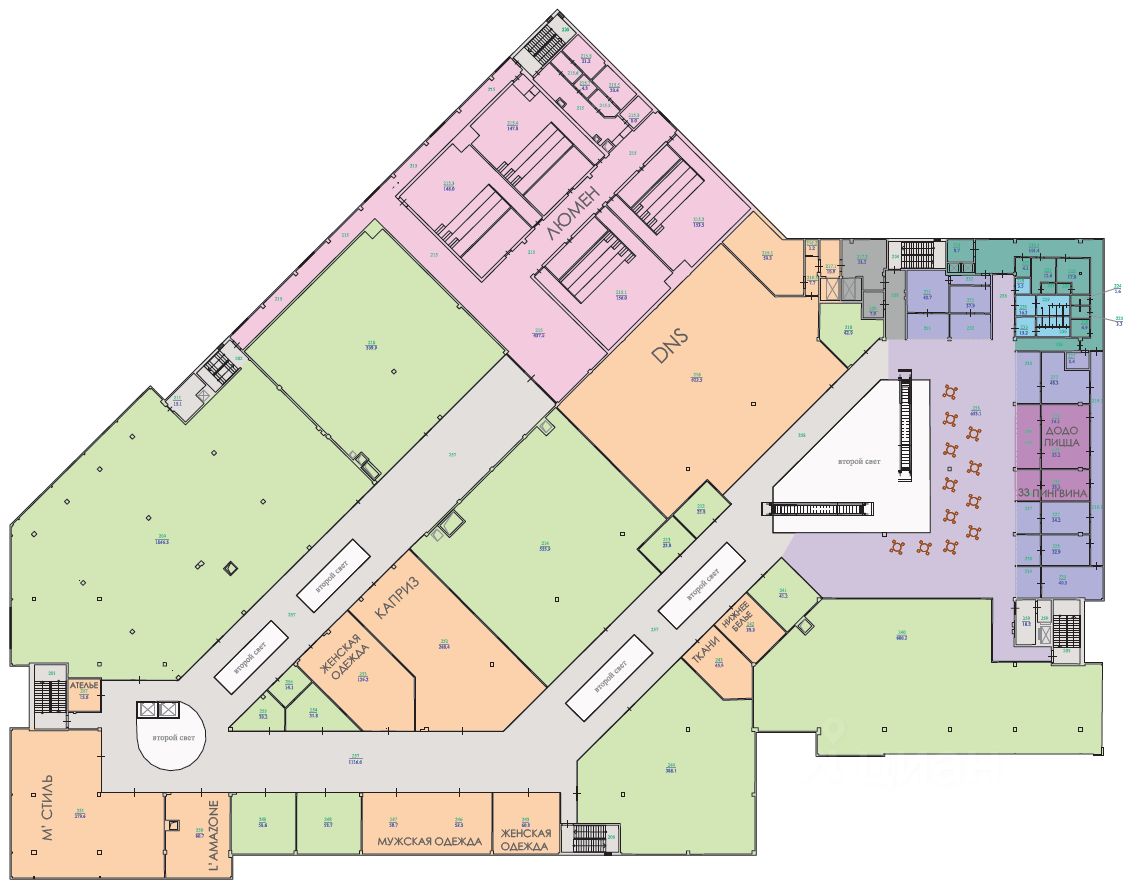
Общая площадь42,7 м2
Этаж2
Год постройки2020
Аренда помещений от собственника ООО ФПГ РОССТРО ! Отличное предложение для вашего бизнеса !
Предлагаем в аренду помещения в новом ТРК Вернисаж, г. Кингисепп:
- Второй этаж, - Проходное место, - Инженерные сети, - Технологическая вентиляция, общеобменная вентиляция, кондиционирование, - Собственная газовая котельная, - Возможность аренды двух-трех соседствующих помещений, - Реклама на фасаде ТРК Вернисаж, - Возможен долгосрочный договор от 3 лет.
! В объявлении указана базовая ставка, итоговая определяется в ходе переговоров.
Вернисаж - крупный ТРК г. Кингисепп, не имеющий соразмерных конкурентов в соседних городах.
Аренда помещений от собственника ООО ФПГ РОССТРО ! Отличное предложение для вашего бизнеса !
Предлагаем в аренду помещения в новом ТРК Вернисаж, г. Кингисепп:
- Второй этаж, - Проходное место, - Инженерные сети, - Технологическая вентиляция, общеобменная вентиляция, кондиционирование, - Собственная газовая котельная, - Возможность аренды двух-трех соседствующих помещений, - Реклама на фасаде ТРК Вернисаж, - Возможен долгосрочный договор от 3 лет.
! В объявлении указана базовая ставка, итоговая определяется в ходе переговоров.
Вернисаж - крупный ТРК г. Кингисепп, не имеющий соразмерных конкурентов в соседних городах. Построен на одной из главных магистралей, которая обеспечивает доступность ТРК для жителей ближних городов и поселков как с автомобилями, так и без.
- Общая площадь ТРК 21 500 м2, арендопригодная 14 000 м2, - 3 этажа, - Грузовые лифты - 1000 кг, - Парковка на 434 машиноместа, - Планируется застройка нового жилого района в непосредственной близости к ТРК.