Термин "Чистая продажа" означает, что в квартире никто не прописан или
есть куда выписаться и вывезти вещи. Это лучший вариант для покупателя.
Вероятность срыва сделки минимальна.
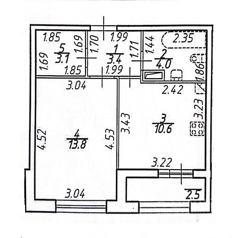
Арт. 68111113 В продаже однокомнатная квартира в жилом комплексе комфорт-класса ''БелАрт''. Квартира без отделки.
Просторная кухня-гостиная 10.5 кв.метров с выходом на застекленную лоджию. Светлая комната 13.8 кв.метров. Имеется гардеробная. Квартира расположена окнами на южную сторону (с видом на исторический центр города, красивые вечерние закаты). Дом сдан, ключи получены. В доме установлены бесшумные лифты. Имеются современные инженерные коммуникации и технические решения подачи горячей воды. Современная система контроля доступа с домофонами и системой видеонаблюдения. Благоустроенная придомовая территория с променадом. Двор без машин, закрыт от посторонних.
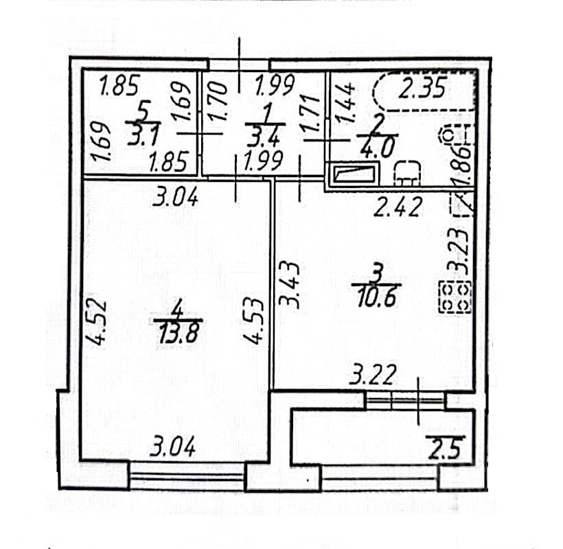
Арт. 68111113 В продаже однокомнатная квартира в жилом комплексе комфорт-класса ''БелАрт''. Квартира без отделки.
Просторная кухня-гостиная 10.5 кв.метров с выходом на застекленную лоджию. Светлая комната 13.8 кв.метров. Имеется гардеробная. Квартира расположена окнами на южную сторону (с видом на исторический центр города, красивые вечерние закаты). Дом сдан, ключи получены. В доме установлены бесшумные лифты. Имеются современные инженерные коммуникации и технические решения подачи горячей воды. Современная система контроля доступа с домофонами и системой видеонаблюдения. Благоустроенная придомовая территория с променадом. Двор без машин, закрыт от посторонних.
О ЛОКАЦИИ: На территории также имеются детские игровые и спортивные площадки. В пешей доступности расположены все самые необходимые магазины, гипермаркеты, детские сады, школы, фитнес-центры. На первых этажах домов будет располагаться коммерция для магазинов, кафе, служб доставки и другим необходимым. В пешей доступности находятся станция метро: Лесная, на автомобиле до центра можно добраться всего за 15 минут. Современный жилой комплекс расположен в Калининском районе, дом комфорт-класса, в котором есть все самое необходимое для комфортной жизни!
Квартиру можно купить в ипотеку, помогу с одобрением. Прямая продажа, один взрослый собственник