Термин "Чистая продажа" означает, что в квартире никто не прописан или
есть куда выписаться и вывезти вещи. Это лучший вариант для покупателя.
Вероятность срыва сделки минимальна.
Квартира
Общая площадь75,5 м2
Жилая площадь37,7 м2
Кухня19 м2
Тип собственностисвидетельство о праве собственности
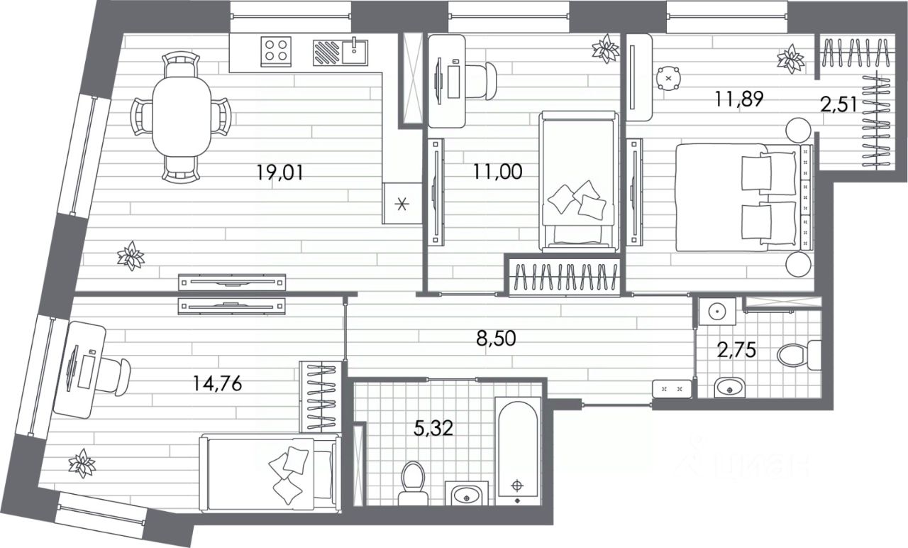
Продается трехкомнатная квартира от застройщика в ЖК ''Северная корона'' на 5 этаже. Квартира без отделки, новый владелец может сделать ремонт по индивидуальному проекту. Общая площадь: 75.5 кв.м., жилая: 37.65 кв.м., площадь просторной кухни-столовой: 19.01 кв.м. Квартира угловая, окна oбecпeчивaют paвнoмepнoe ocвeщeниe в тeчeниe дня. В квартире один совмещенный и один раздельный санузел. Высота потолков 3.0 м.
Квартира находится в корпусе 6. Дом монолитный, одноподъездный, высотой 8 этажей. На этаже 6 квартир. В подъезде 1 грузовой лифт. Строительство завершено, дом сдан в 4 квартале 2023 года. Оформление сделки по договору купли-продажи.
Объект забронирован клиентом!
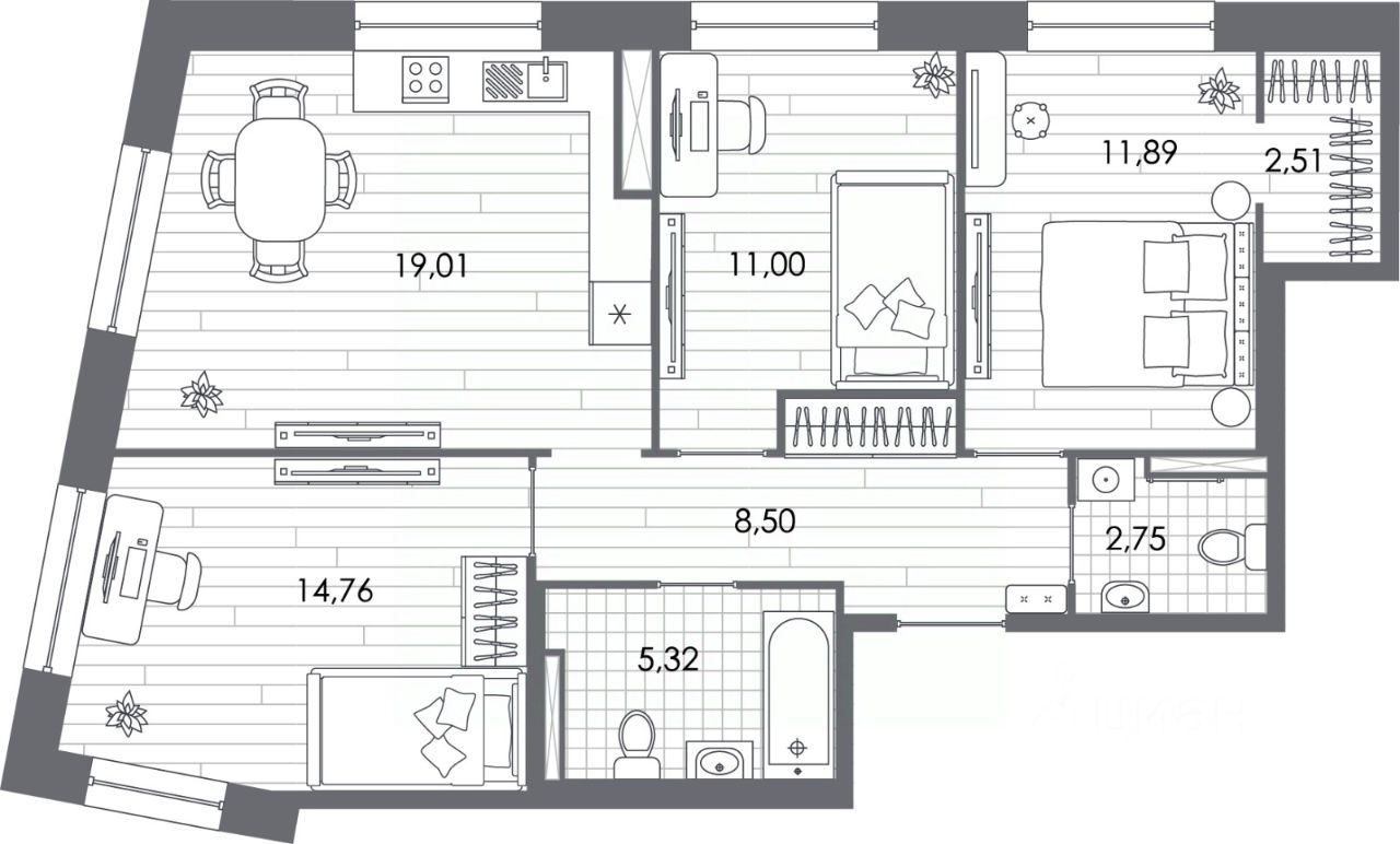
Продается трехкомнатная квартира от застройщика в ЖК ''Северная корона'' на 5 этаже. Квартира без отделки, новый владелец может сделать ремонт по индивидуальному проекту. Общая площадь: 75.5 кв.м., жилая: 37.65 кв.м., площадь просторной кухни-столовой: 19.01 кв.м. Квартира угловая, окна oбecпeчивaют paвнoмepнoe ocвeщeниe в тeчeниe дня. В квартире один совмещенный и один раздельный санузел. Высота потолков 3.0 м.
Квартира находится в корпусе 6. Дом монолитный, одноподъездный, высотой 8 этажей. На этаже 6 квартир. В подъезде 1 грузовой лифт. Строительство завершено, дом сдан в 4 квартале 2023 года. Оформление сделки по договору купли-продажи.
В шаговой доступности от жилого комплекса находятся станции метро (расстояние по прямой): ''Петроградская'' (500 м), ''Чкаловская'' (1.3 км), ''Горьковская'' (1.7 км), ''Чёрная речка'' (1.7 км), также недалеко от этого корпуса находятся станции метро: ''Чернышевская'', ''Спортивная''.
Премиальный жилой комплекс ''Северная корона'' расположился в парадной части Петроградской стороны на пересечении ее главного проспекта — Каменноостровского и набережной реки Карповки. Двухсотметровое парадное лобби, дизайнерский ландшафт, собственная фитнес-студия, парадная гостиная для встреч и переговоров, игровой клуб для детей. А также: системы очистки и подготовки воды и воздуха, консьерж-сервис, бесключевой доступ, помещения для ожидания и многое другое. Архитектура премиального дома ''Северная корона'' — это современное воплощение и новое развитие архитектуры северного модерна. Особенность и уникальность дома в его протяженности вдоль реки Карповки. Фасад исключает монотонность, линии интегрированы в канву курдонера и внутренних общественных пространств, обращённых как в сторону Каменноостровского проспекта, так и Иоановского монастыря. Все квартиры в полной мере можно назвать видовыми они открыты историческому окружению и ландшафтной архитектуре. Что дарит владельцам единственные в своем роде захватывающие виды. Этажность: 4 - 9 этажей (в т.ч. 1 подземный) Дом СДАН. Класс проекта: Премиум класс
Уникальность проекта: - Французские балконы - Видовые квартиры - Панорамное остекление - Потолки до 3,5 метров - Мансардные окна - Индивидуальные сплит шахты - Считывание номеров автомобилей - Современная архитектура и инженерия - Двор парк - Центральное лобби 200 кв.м. #zMevOa