сдам производственное помещение, 4-й Предпортовый проезд, 5л772 800 ₽ в месяц
1 мар
Дата публикации объявления
Обн. вчера
Дата обновления объявления
1150 ₽/м² в месяц
Параметры
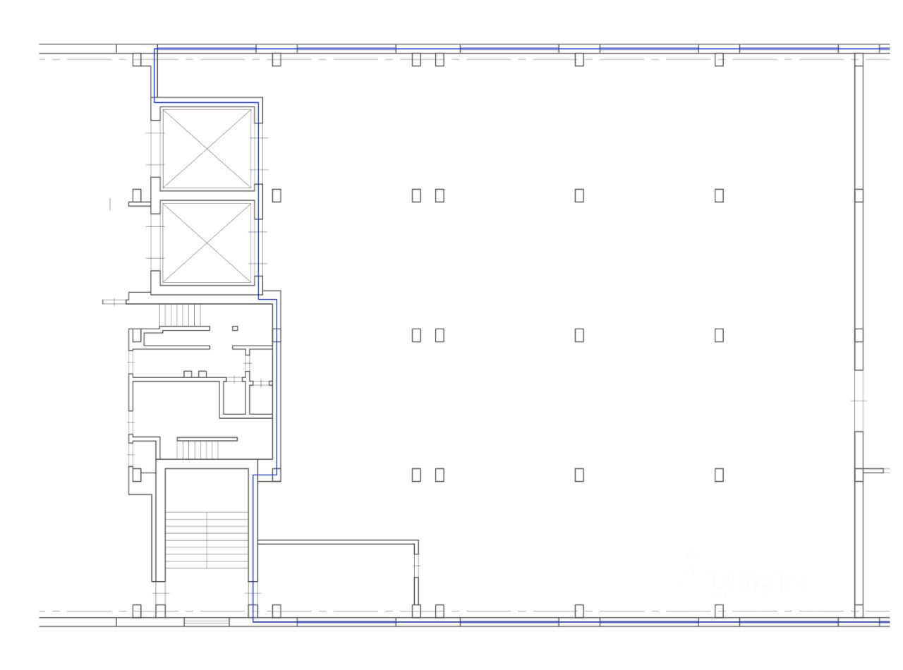
Общая площадь672 м2
Этаж3
Назначение помещения
склады, хранение товаров
Предлагается помещение под пищевое или ''чистое'' производство на 3 этаже. 2 парковочных места в ПОДАРОК!
Основные характеристики и преимущества: - В стоимость включены НДС и отопление - Высота потолка — 4,5 метра - Лифт на 5 тонн (2 шт.) - Бытовые помещения, 2 сан.
Предлагается помещение под пищевое или ''чистое'' производство на 3 этаже. 2 парковочных места в ПОДАРОК!
Основные характеристики и преимущества: - В стоимость включены НДС и отопление - Высота потолка — 4,5 метра - Лифт на 5 тонн (2 шт.) - Бытовые помещения, 2 сан.узла, офисный блок - 600 кВт - Пол — ровный, обеспыленный бетонный пол - Отопление, вода, канализация, пожарная сигнализация, интернет, телефония — всё подключено - Тёплая погрузочная зона на первом этаже - Асфальтированная территория для маневрирования и парковки транспортных средств - Бесплатный въезд на охраняемую территорию - Парковка и площадки для большегрузного транспорта - На территории расположены кофе-автомат и бистро — комфорт для сотрудников и гостей! - Видеонаблюдение и круглосуточная охрана обеспечивают вашу безопасность - Возможность аренды офисных помещений в нашем бизнес-центре - Современные системы: автоматическое распознавание номеров, мобильное приложение для пропусков для автомобилей
Локация и транспорт: - Удобная транспортная доступность — всего 10 минут до метро Московская - 200 м до КАД
Идеально подходит под: - алкогольный склад - швейное производство - пищевое производство - фармацевтическое производство - складские площади
Звоните прямо сейчас! Обсудим условия и забронируем помещение для вашего бизнеса.
Возможно, вы искали: фулфилмент, распределительный центр, логистический, кросс-докинг, интернет-магазин (хранение и комплектация заказов), оптовый склад, склад маркетплейса, швейное производство, текстильный цех, фасовка и упаковка продукции, пищевое производство, кондитерский цех, производство полуфабрикатов, сборка и комплектация изделий, контрактное производство, мелкосерийное производство, сборочный цех, производство мебели, столярный цех, металлообработка лёгкая, производство пластиковых изделий, печатное производство, типография, рекламно-производственный цех, склад стройматериалов, склад запчастей, сервисный центр, ремонт и обслуживание оборудования, dark store, склад для HoReCa, склад фармацевтической продукции , архив, мастерская, техническая база, пункт выдачи заказов с зоной хранения