Если цена в объявлении изменится, мы сразу сообщим вам об этом на электронную почту.
Нажимая «Подписаться», вы соглашаетесь с правилами.
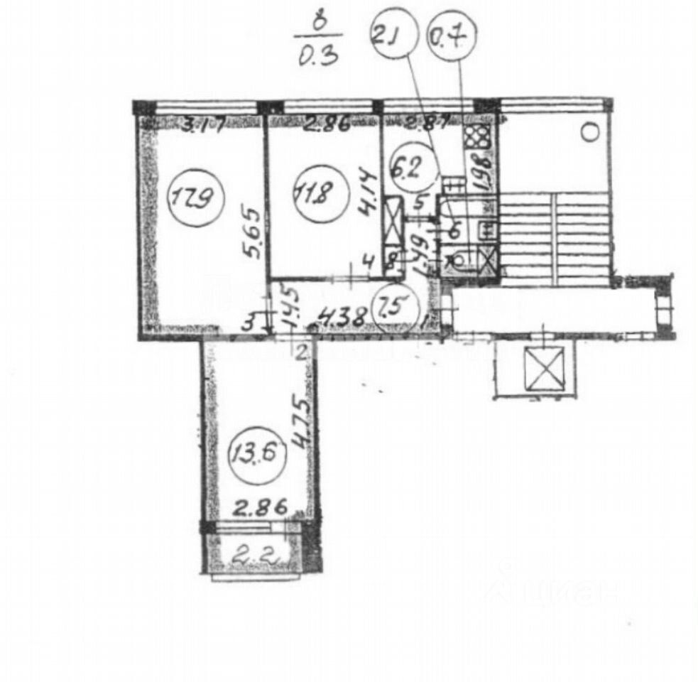
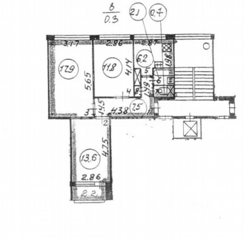
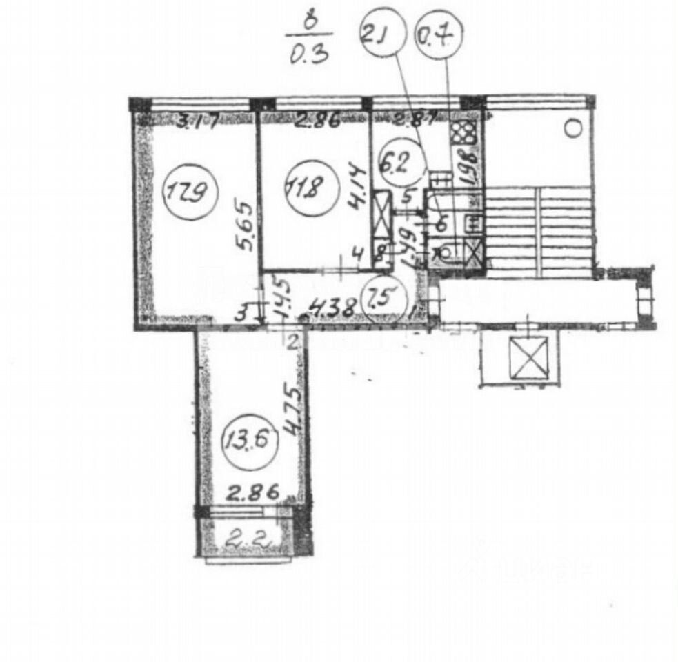
продам 3-к, Наличная, 45 корп. 113 000 000 ₽
27 фев
Дата публикации объявления
Обн. 27 мар
Дата обновления объявления
1
Количество просмотров (+ просмотры за сегодня)
209 677 ₽/м²
Чистая продажа
Термин "Чистая продажа" означает, что в квартире никто не прописан или
есть куда выписаться и вывезти вещи. Это лучший вариант для покупателя.
Вероятность срыва сделки минимальна.
Продается уютная квартира, рядом с метро Приморская, идеально для семьи с детками. Рядом много школ и детских садов, во дворе футбольное поле, парковка.