Если цена в объявлении изменится, мы сразу сообщим вам об этом на электронную почту.
Нажимая «Подписаться», вы соглашаетесь с правилами.
продам 3-к, Революции шоссе, 3 корп. 235 500 000 ₽
19 фев
Дата публикации объявления
Обн. 21 мар
Дата обновления объявления
1
Количество просмотров (+ просмотры за сегодня)
347 698 ₽/м²
Чистая продажа
Термин "Чистая продажа" означает, что в квартире никто не прописан или
есть куда выписаться и вывезти вещи. Это лучший вариант для покупателя.
Вероятность срыва сделки минимальна.
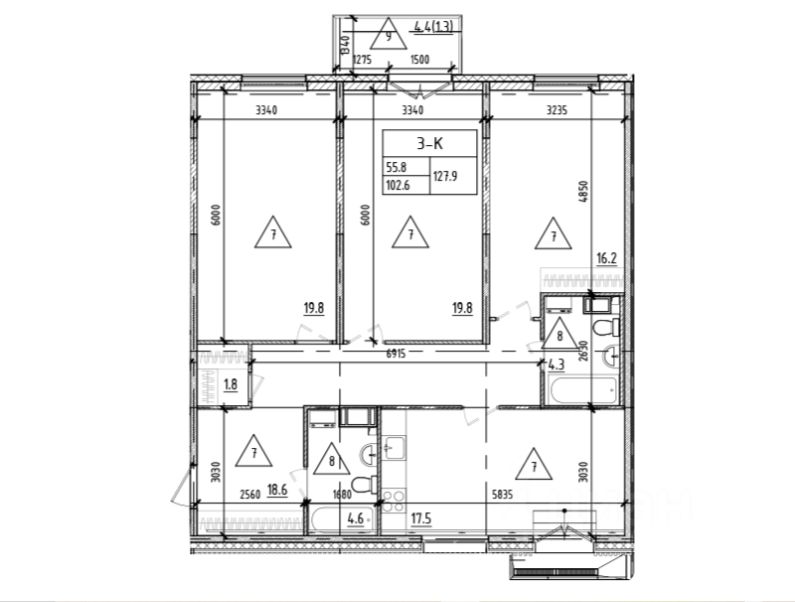
Продаётся 3-конатный пентхаус в клубном доме бизнес класс!
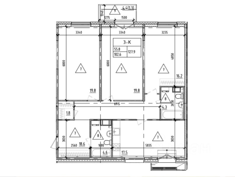
О КВАРТИРЕ: - Общая площадь: 102,1 кв.м. + площадь балкона 4,4 кв.м. и площадь французского балкона. - Жилая площадь: 55,8 кв.м. -Кухня: 17,5 кв.м. -Два совмещенных санузла: 4,6 и 4,3 кв.м. - Прихожая-коридор: 18,6 кв.м. - Гардеробная: 1,8 кв.м. Высота потолков: 2,8 м. Увеличенные оконные проёмы.
Отделка White box(пред чистовая): - Пол: стяжка - Стены: выровнены и подготовлены под финишное покрытие - Коммуникации: горизонтальная разводка отопления (трубы спрятаны в стяжке пола), радиаторы европейского производства.
На этаже всего две квартиры(план приложен). С парадной на этаже есть выход на террасу.
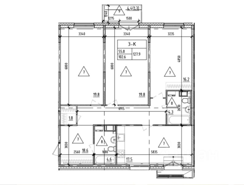
Продаётся 3-конатный пентхаус в клубном доме бизнес класс!
О КВАРТИРЕ: - Общая площадь: 102,1 кв.м. + площадь балкона 4,4 кв.м. и площадь французского балкона. - Жилая площадь: 55,8 кв.м. -Кухня: 17,5 кв.м. -Два совмещенных санузла: 4,6 и 4,3 кв.м. - Прихожая-коридор: 18,6 кв.м. - Гардеробная: 1,8 кв.м. Высота потолков: 2,8 м. Увеличенные оконные проёмы.
Отделка White box(пред чистовая): - Пол: стяжка - Стены: выровнены и подготовлены под финишное покрытие - Коммуникации: горизонтальная разводка отопления (трубы спрятаны в стяжке пола), радиаторы европейского производства.
На этаже всего две квартиры(план приложен). С парадной на этаже есть выход на террасу.
О ДОМЕ И ЖК: Проект представляет собой кирпично-монолитный дом переменной этажности: от 6 до 9 этажей. Фасады облицованы кирпичом серебряных оттенков. В комплексе оформлена дизайнерская отделка входных групп, установлены современные бесшумные скоростные лифты Kone. В домах предусмотрены колясочные комнаты, кладовые, велопарковки, места для самокатов и спортивного снаряжения.
В проекте всего 140 квартир. На последних этажах разместились пентхаусы.
На территории комплекса расположен приватный двор, свободный от машин, с зонами отдыха и амфитеатром, игровыми площадками из природных материалов и спортивными зонами. Для владельцев автомобилей предусмотрен подземный паркинг с зарядными станциями для электрокаров. Территория двора и подземный паркинг оборудованы видеонаблюдением и охраной.
ИНФРАСТРУКТУРА И РАСПОЛОЖЕНИЕ: Жилой комплекс расположен на Пискаревском проспекте, рядом со Свердловской набережной. В шаговой доступности — сад Нева, Полюстровский парк, бизнес-центр, сетевые магазины. Рядом находится школа и детский сад. В 5 минутах пешком — остановка общественного транспорта. Метро Площадь Ленина и Новочеркасская находятся в 10 минутах транспортом.
СДЕЛКА: 1 собственник, прямая продажа, полная стоимость в договоре, материнский сертификат не использовался, без перепланировок, покупалась у застройщика.
По всем вопросам и для согласования просмотра обращайтесь по телефону!