Если цена в объявлении изменится, мы сразу сообщим вам об этом на электронную почту.
Нажимая «Подписаться», вы соглашаетесь с правилами.
продам 1-к, Круговая4 867 000 ₽
19 фев
Дата публикации объявления
Обн. вчера
Дата обновления объявления
Топ
Турбо x2
124 000 ₽/м²
Чистая продажа
Термин "Чистая продажа" означает, что в квартире никто не прописан или
есть куда выписаться и вывезти вещи. Это лучший вариант для покупателя.
Вероятность срыва сделки минимальна.
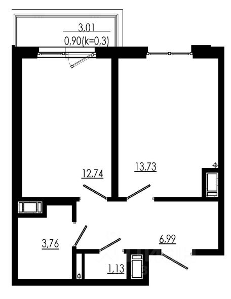
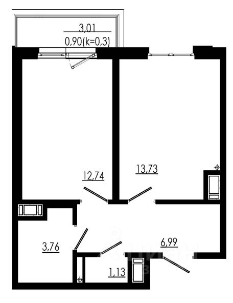
Квартира
Общая площадь39,25 м2
Тип собственностидоговор долевого участия
Дом
Срок сдачи3 кв. 2026 г.
Этаж2 из 4
Материал домамонолит
Продаётся 1-комнатная квартира в строящемся доме (Дом 19), срок сдачи: III-кв. 2026, общей площадью 39.25 кв.м., на 2 этаже. Новый жилой дом от застройщика ''НК Развитие'' расположен по адресу: Форносовское г.п, г.п.Форносово, ул.Круговая, уч. 19.