Если цена в объявлении изменится, мы сразу сообщим вам об этом на электронную почту.
Нажимая «Подписаться», вы соглашаетесь с правилами.
продам 3-к, Ленина, 61 корп. 36 290 000 ₽
11 фев
Дата публикации объявления
Обн. вчера
Дата обновления объявления
4
Количество просмотров (+ просмотры за сегодня)
112 926 ₽/м²
Чистая продажа
Термин "Чистая продажа" означает, что в квартире никто не прописан или
есть куда выписаться и вывезти вещи. Это лучший вариант для покупателя.
Вероятность срыва сделки минимальна.
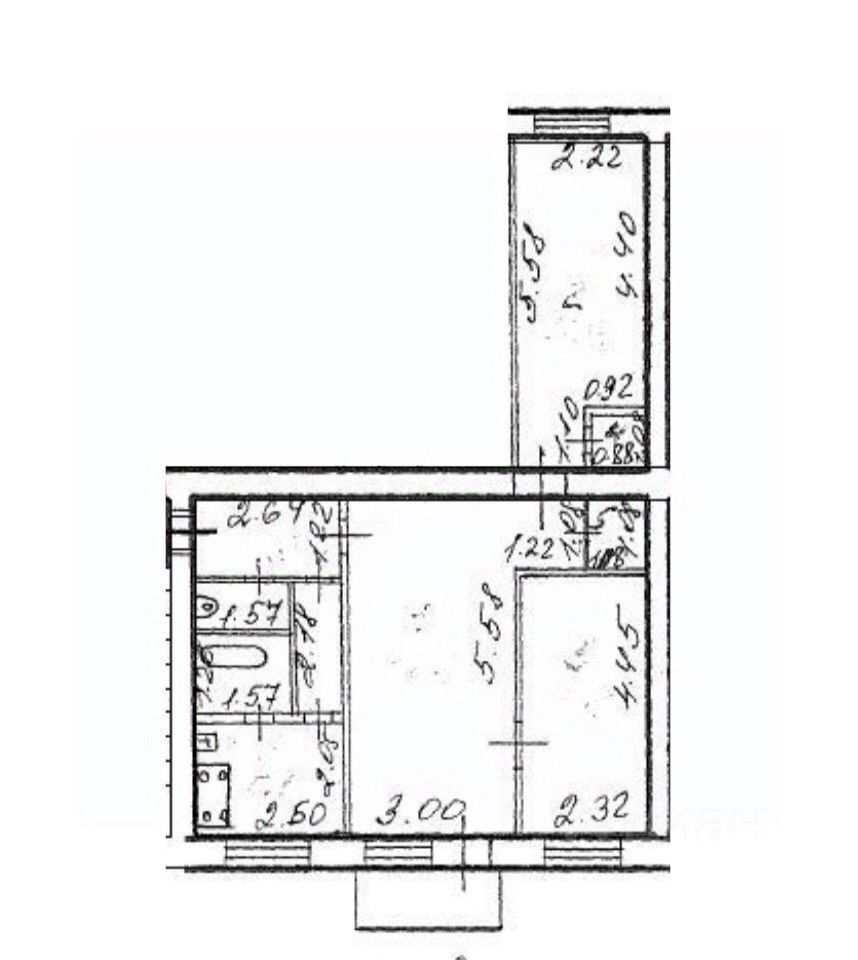
Арт. 129906763 В продаже 3-х комнатная квартира в теплом кирпичном доме в центре Красного Села. Вся инфраструктура в шаговой доступности.
В доме железобетонные перекрытия. Общая площадь квартиры 55,7 м2. Окна (стеклопакеты) выходят на две стороны- во двор на детскую площадку и на тихую улицу, виден детский садик. Планировка смежно-изолированная. В квартире несколько вместительных стенных шкафов. Санузел раздельный. Дверь в ванную со стороны кухни. Есть большой балкон (не застекленный) Квартира требует ремонта.
Два взрослый собственника. Прямая продажа, сейчас в квартире никто не живет. Возможна ипотека, субсидии, мат капитал.
Почему нужно работать с агентством недвижимости ''Невский Простор''?
Арт. 129906763 В продаже 3-х комнатная квартира в теплом кирпичном доме в центре Красного Села. Вся инфраструктура в шаговой доступности.
В доме железобетонные перекрытия. Общая площадь квартиры 55,7 м2. Окна (стеклопакеты) выходят на две стороны- во двор на детскую площадку и на тихую улицу, виден детский садик. Планировка смежно-изолированная. В квартире несколько вместительных стенных шкафов. Санузел раздельный. Дверь в ванную со стороны кухни. Есть большой балкон (не застекленный) Квартира требует ремонта.
Два взрослый собственника. Прямая продажа, сейчас в квартире никто не живет. Возможна ипотека, субсидии, мат капитал.
Почему нужно работать с агентством недвижимости ''Невский Простор''? Услуги сертифицированы Российской Гильдией Риэлторов (РГР). Профессиональная ответственность застрахована. СПАО ''ИНГОССТРАХ'' вернёт до 10 млн. руб. в случае утраты права собственности. Бесплатное юридическое сопровождение сделки. Помощь в одобрении ипотеки.