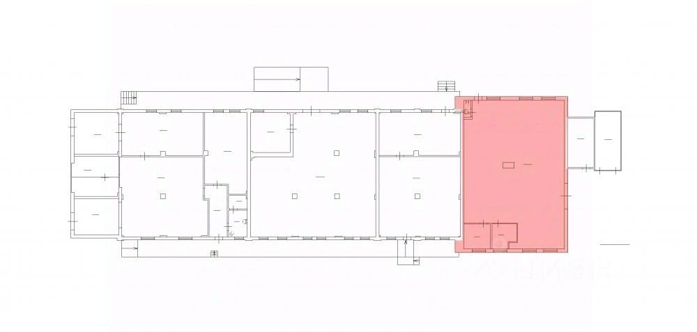
Прямая аренда отличного производственного
помещения! Адрес: ул. Швецова д. 41, лит Ж. Отдельный вход с территории технопарка. Площадь помещения - 230,3 кв. м. Отдельный вход. Ворота 2,90 х 2,90 м. Характеристики помещения: окрашенные стены, потолки высотой 5,30 метра, ровный бетонный пол. Оснащение: выделенная электрическая мощность 15 кВт, отопление от собственной котельной, освещение, ХВС и водоотведение. Круглосуточная охрана территории. Действует система СКУД. Возможен круглосуточный режим работы. В стоимость аренды входит НДС. Для получения более подробной информации и записи на просмотр - обращайтесь к менеджерам колл-центра!












