Если цена в объявлении изменится, мы сразу сообщим вам об этом на электронную почту.
Нажимая «Подписаться», вы соглашаетесь с правилами.
продам 1-к, Кустодиева, 5 корп. 111 130 000 ₽
2 фев
Дата публикации объявления
Обн. 3 мая
Дата обновления объявления
1
Количество просмотров (+ просмотры за сегодня)
278 947 ₽/м²
Чистая продажа
Термин "Чистая продажа" означает, что в квартире никто не прописан или
есть куда выписаться и вывезти вещи. Это лучший вариант для покупателя.
Вероятность срыва сделки минимальна.
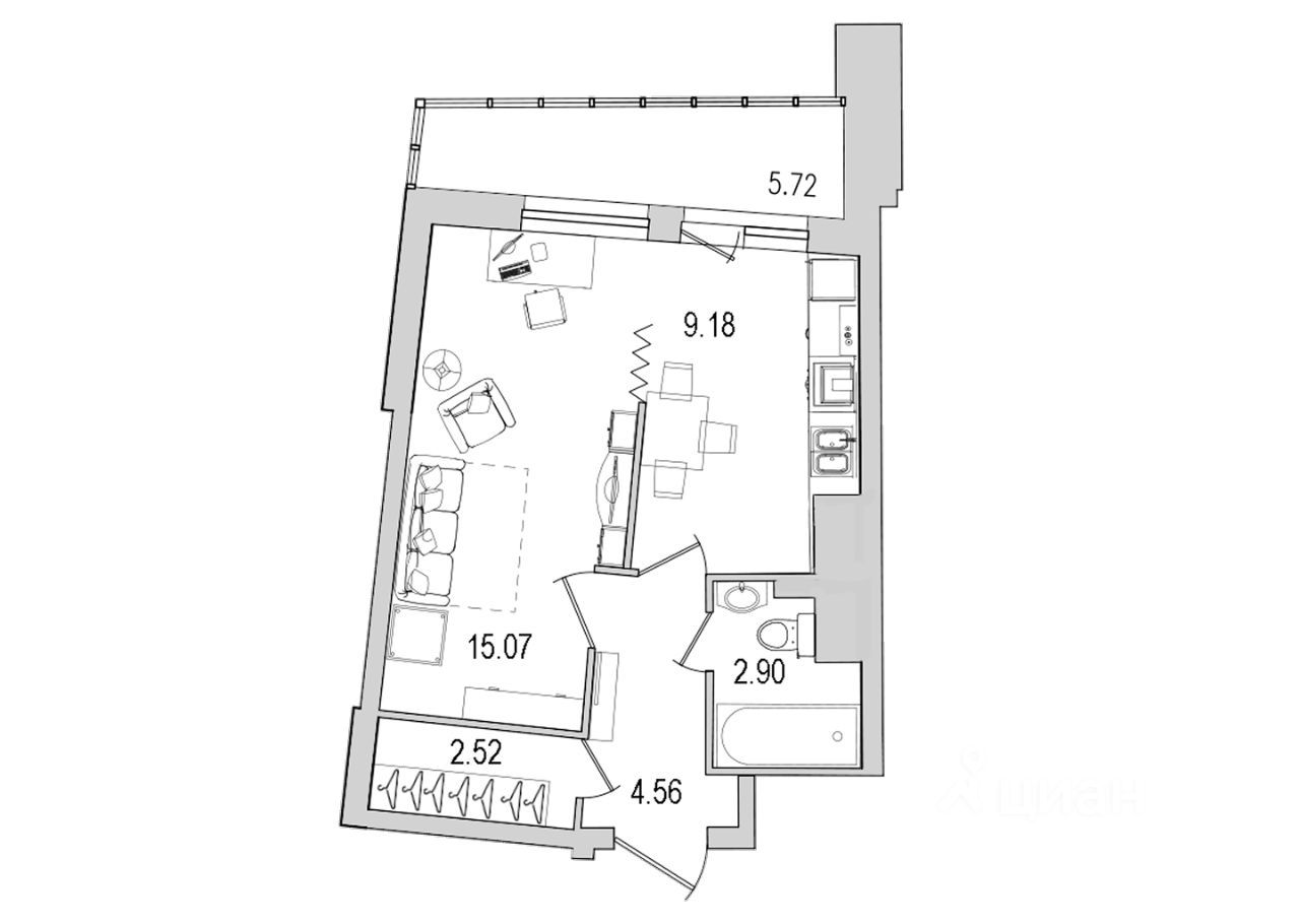
Видовая однокомнатная квартира 39.9 кв.м. с большим балконом! Отделка ''Морошка''. Прямая продажа. Полная стоимость в договоре. Без обременений.
Кухня - столовая 9.2 кв.м. с выходом на большой балкон 5.7 кв.м. Жилую комнату 15.1 кв.м. можно разделить на гостевую, спальную зоны. Гардеробная 2.5 кв.м. Прихожая 4.6 кв.м. Санузел раздельный. Вид из окон на улицу.
В квартире выполнена отделка ''Морошка'': стены оклеены обоями теплого оттенка(под покраску), на полу - ламинат, потолки - натяжные, в санузлах на полу и стенах керамическая плитка, установлена качественная сантехника, на балконе пол выложен плитой, потолок окрашен, установлены межкомнатные двери и качественная металлическая дверь. Квартира полностью готова к проживанию.
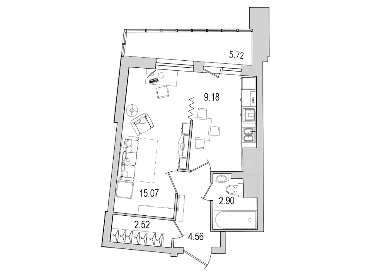
Видовая однокомнатная квартира 39.9 кв.м. с большим балконом! Отделка ''Морошка''. Прямая продажа. Полная стоимость в договоре. Без обременений.
Кухня - столовая 9.2 кв.м. с выходом на большой балкон 5.7 кв.м. Жилую комнату 15.1 кв.м. можно разделить на гостевую, спальную зоны. Гардеробная 2.5 кв.м. Прихожая 4.6 кв.м. Санузел раздельный. Вид из окон на улицу.
В квартире выполнена отделка ''Морошка'': стены оклеены обоями теплого оттенка(под покраску), на полу - ламинат, потолки - натяжные, в санузлах на полу и стенах керамическая плитка, установлена качественная сантехника, на балконе пол выложен плитой, потолок окрашен, установлены межкомнатные двери и качественная металлическая дверь. Квартира полностью готова к проживанию.
Жилой комплекс комфорт-класса ''Байрон'' с закрытой, благоустроенной территорией, с детскими, спортивными площадками и зонами для отдыха. В пешей доступности детские сады, школы, аптеки, поликлиники, магазины продуктовых сетей, кафе, ТРК ''Северный Молл'', ''Норд'', ''Гранд Каньон''. Остановка общественного транспорта в 3-х минутах ходьбы. До ближайшей станции метро ''Пр. Просвещения'' - 22 минуты пешком. Отличным местом для прогулок станут парки ''Сосновка'' и ''Муринский парк''.
Показы в любое удобное время по предварительной записи, звоните! Индекс квартиры 17/1-46б.