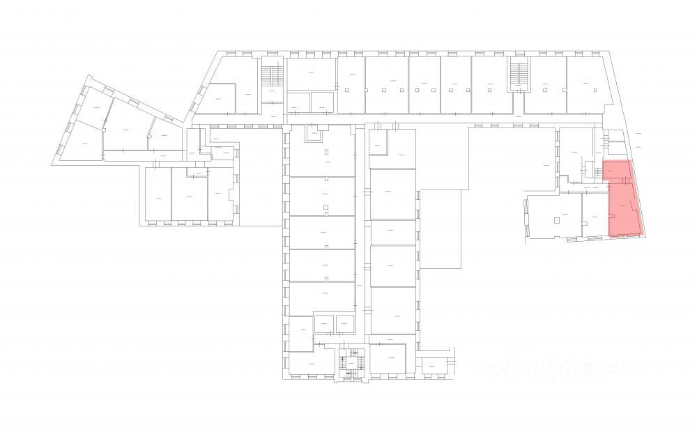
Предлагаем в аренду кабинет с качественной
отделкой в Приморском районе. Площадь: 56,9 кв. м. Отличный вариант для размещения массажной студии. Пространство разделено на два кабинета, которые можно оборудовать по вашим предпочтениям. Расположение в густонаселённом районе является большим плюсом. Отделка помещения: окрашенные стены, ламинат на полу, подвесной потолок. Оснащение: отопление, освещение, пожарная сигнализация. На территории ведётся видеонаблюдение и круглосуточная охрана. Для гостей и арендаторов доступна парковка. Также дополнительно подключаются интернет и телефония. Отличную транспортную доступность обеспечивают набережная Чёрной речки и проспект Энгельса с прямым доступом на КАД. В пешей доступности находятся станции метро ''Лесная'' и ''Чёрная речка''.









