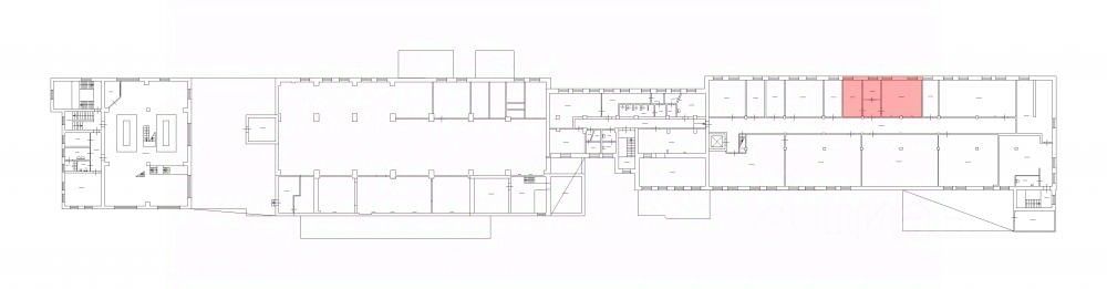
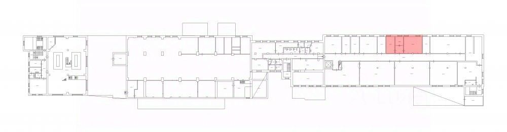
Аренда блока помещений под склад продукции
площадью 80,2 кв. м. Адрес объекта: ул. Швецова, дом 41, лит Л. 2 этаж здания. Есть грузовой подъёмник г/п 200 кг. Блок состоит из 3-ех комнат. Пол - кафельный, стены- бетонные, высота потолка от 4,2 до 4,8 м. В помещение заведены высокоскоростной интернет и цифровая телефония. Присутствует всё необходимое оснащение (отопление, освещение). Установлены датчики пожарной безопасности. Для удобства арендаторов на территории есть столовая, кафе, магазин. Проход осуществляется по пропускам. Охраняемая парковка позволит не думать о том, где оставить автомобиль. Объект находится под круглосуточной охраной. Есть возможность работать 24/7.











