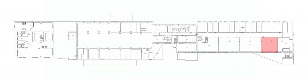
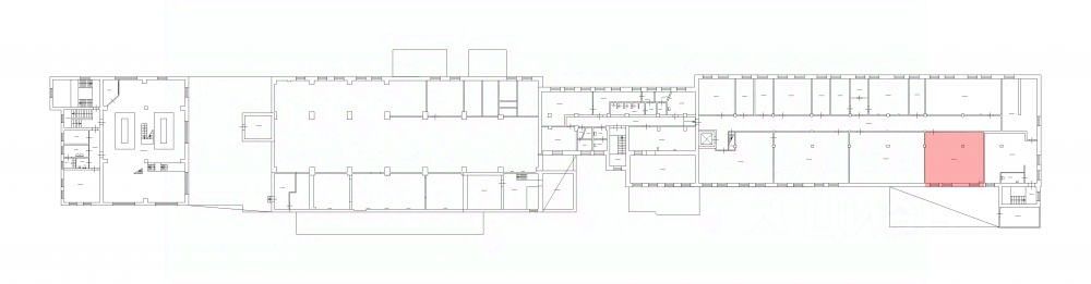
Собственник предлагает помещение площадью
82.1 кв. м под склад у станции метро ''Нарвская''. Второй этаж, в здании есть грузовой лифт. Оснащение: освещение, отопление, выделенная электрическая мощность, пожарная сигнализация. Действует система СКУД. Проход осуществляется по электронным картам доступа. На территории есть уютное кафе и парковка.






