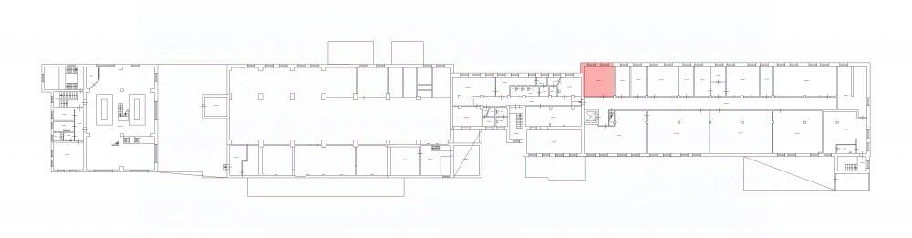
Аренда складского помещения в Кировском
районе. Площадь- 38,5 кв. м. Пол - бетонный, стены - бетонные, 2 окна. Помещение на 2 этаже, есть грузоподъёмник г/п 200 кг. Установлены датчики пожарной безопасности, противопожарная дверь. Для удобства арендаторов на территории есть столовая, кафе, магазин. Охраняемая парковка. Объект под круглосуточной охраной. Проход/проезд осуществляется по пропускам.











