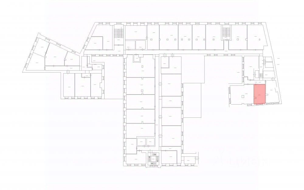
В аренду сдаётся небольшой кабинет под
офис юриста в Приморский районе города. Второй этаж здания на Красногвардейском пер., дом 23. Кабинетная планировка. Имеются все необходимые инженерные коммуникации, проведены интернет и телефония. На территории есть вместительная парковка. Охрана 24 часа. В пешей доступности станции метро ''Чёрная речка'' и ''Лесная''.







