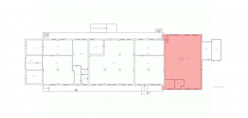
Прямая аренда производственно-складского
помещения в технопарке ''Нарвский''. Адрес: ул. Швецова, д. 41, лит Ж. Площадь помещения - 230.3 кв. м. Отдельный вход в помещение с территории технопарка. Собственные ворота 2,90 х 2,90 м. Высокие потолки - 5.3 метра. Полы ровные, бетонные. Проведены все необходимые коммуникации - электричество 15 кВт, ХВС и канализация. Установлена пожарная сигнализация. Действует система СКУД. Полностью охраняемая территория, проход осуществляется по магнитным картам. Возможен круглосуточный режим работы. В стоимость входит НДС 20%. Для получения более подробной информации и записи на просмотр - обращайтесь к менеджерам колл-центра!







