Большая, 92 м2 евро 2к квартира, в кирпичном доме 2004 года постройки.
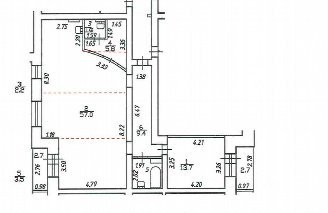
Огромная кухня-гостиная 57 м2, два с/у, два балкона.
В квартире установлена системе приточной вентиляции.
Выделенное парковочное место в дворе.
При необходимости можно сделать 3 к кв.
(на планировке показан возможный вариант — красный пунктир).
В шаговой доступности расположена вся необходимая инфраструктура:
- детские сады, школы, магазины, поликлиники и др.
Через дорогу Большое Нижнее Суздальское озеро.
Удобная транспортная доступность, метро проспект Просвещения 10 минут транспортом, до Кад 10 мин на, а/м.
Отличный вариант для большой семьи.
Прямая продажа, более 5 лет, один взрослый собственник.



















