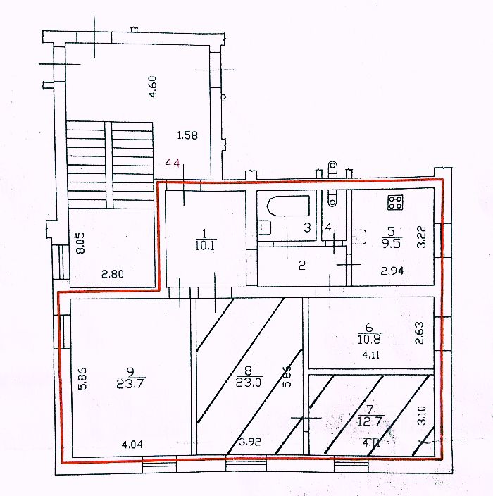
СТАЛИНСКИЙ ДОМ в центре Кронштадта!!! Предлагается к продаже просторная, светлая, тёплая, 4-ком. квартира на 4 этаже. Фасад дома отремонтирован в 2023г. заменены двери, окна в подъездах, произведён ремонт крыши. Также ранее была произведена замена батарей и стояков.
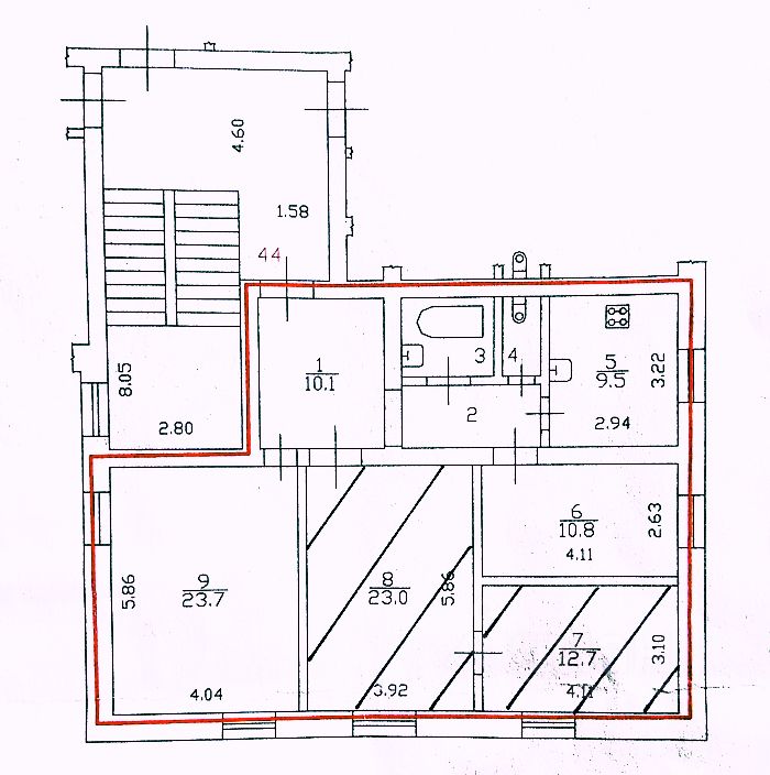
Общая S - 98,7 кв.м., жилая 70,2 кв.м, комнаты: 23,7+ 10,8+(23+12,7) кв.м., кухня 9,5 кв.м., прихожая и коридор 15 кв.м. С/уз раздельный. Квартире требуется ремонт, но на окнах стоят стеклопакеты.
Развитая инфраструктура: школы, дет.сады, магазины, аптеки, театр, парки, Морской собор, музеи, крупнейший в России парк, посвящённый военно-морскому флоту Остров фортов, выход к заливу и т.п.
Прекрасная транспортная доступность: до метро ''Беговая'' -30 мин на машине.
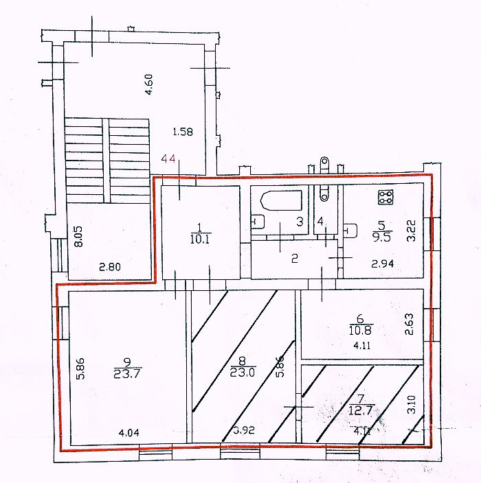
СТАЛИНСКИЙ ДОМ в центре Кронштадта!!! Предлагается к продаже просторная, светлая, тёплая, 4-ком. квартира на 4 этаже. Фасад дома отремонтирован в 2023г. заменены двери, окна в подъездах, произведён ремонт крыши. Также ранее была произведена замена батарей и стояков.
Общая S - 98,7 кв.м., жилая 70,2 кв.м, комнаты: 23,7+ 10,8+(23+12,7) кв.м., кухня 9,5 кв.м., прихожая и коридор 15 кв.м. С/уз раздельный. Квартире требуется ремонт, но на окнах стоят стеклопакеты.
Развитая инфраструктура: школы, дет.сады, магазины, аптеки, театр, парки, Морской собор, музеи, крупнейший в России парк, посвящённый военно-морскому флоту Остров фортов, выход к заливу и т.п.
Прекрасная транспортная доступность: до метро ''Беговая'' -30 мин на машине.
Встречка- подберём быстро. Возможно под ипотеку, перепланировок не было. Без обременений. Маткапитал не использовался. Показы по договорённости.