На полу уложено эстетичное и прочное SPC-покрытие.
Дизайнерские входные группы, спокойные соседи. Мы ценим чистоту и взаимоуважение.
Коммунальные услуги и эксплуатационные расходы включены в стоимость.
Юридический адрес предоставляем.
Здание представляет собой капитальное строение с монолитным каркасом, негорючими перегородками между помещениями, фальцевой крышей, вентилируемым фасадом, охранно-пожарная сигнализация, контроль доступа, внешнее видеонаблюдение, внешнее освещение, охраняемая территория, возможность круглосуточного доступа.
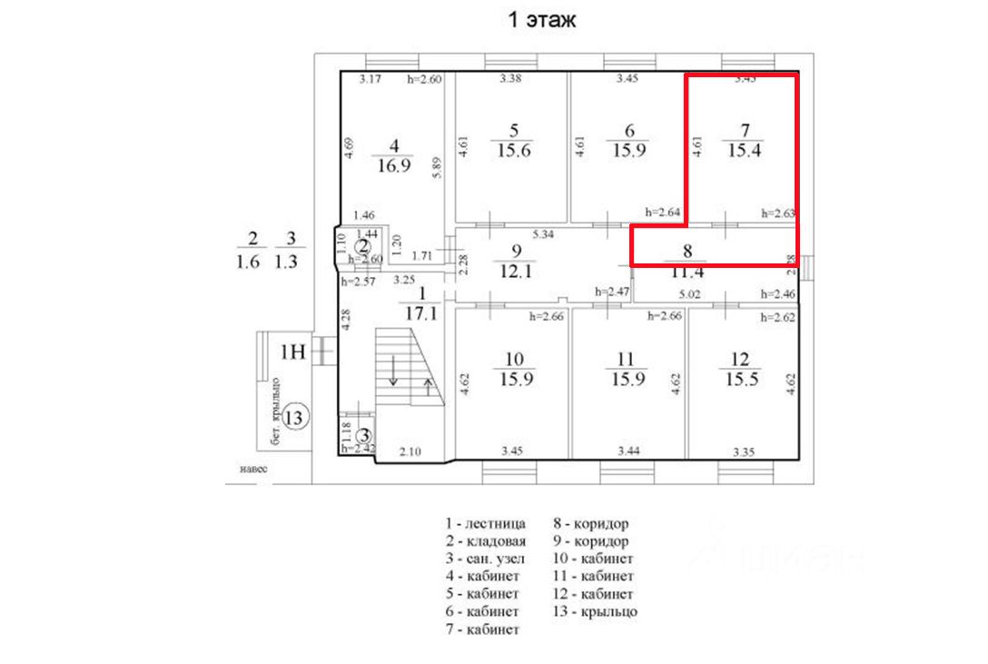
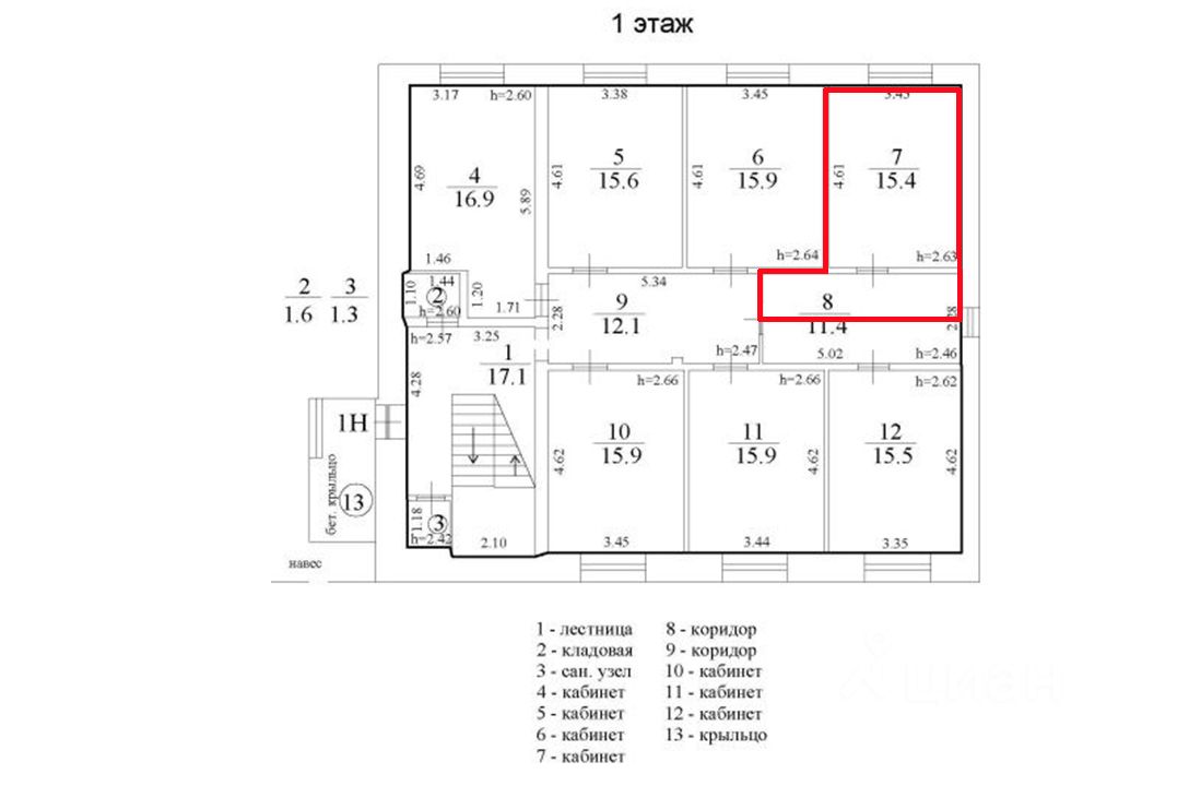
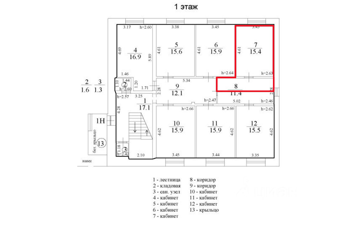
Сдаётся офис площадью 15,5 м кв совместно с долей в пространстве общего использования 11,4 (5,7 м кв) в отдельном закрываемом блоке.
На полу уложено эстетичное и прочное SPC-покрытие.
Дизайнерские входные группы, спокойные соседи. Мы ценим чистоту и взаимоуважение.
Коммунальные услуги и эксплуатационные расходы включены в стоимость.
Юридический адрес предоставляем.
Здание представляет собой капитальное строение с монолитным каркасом, негорючими перегородками между помещениями, фальцевой крышей, вентилируемым фасадом, охранно-пожарная сигнализация, контроль доступа, внешнее видеонаблюдение, внешнее освещение, охраняемая территория, возможность круглосуточного доступа.
Профессиональная управляющая компания.
Производится обслуживание и круглогодичная уборка благоустроенной прилегающей территории (вне зависимости от погодных условий и объема осадков, в том числе вывоз снега).
Так же в аренду есть производственно-складские помещения.
Офисный блок можно снять полностью.
Возможность заключения долгосрочных договоров.
Близость к ул. Софийская 600м, КАД 3км, близость к М-10 и М-11.