Термин "Чистая продажа" означает, что в квартире никто не прописан или
есть куда выписаться и вывезти вещи. Это лучший вариант для покупателя.
Вероятность срыва сделки минимальна.
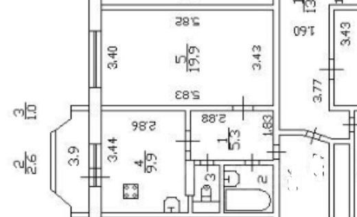
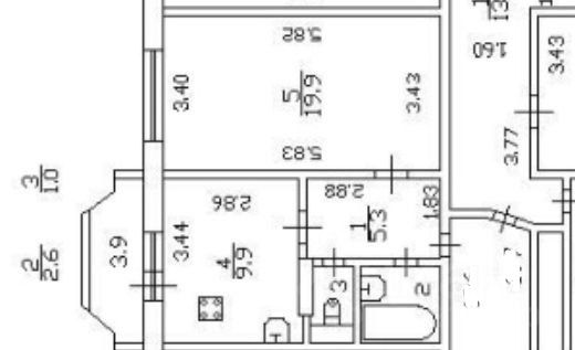
Продается однокомнатная неугловая очень тёплая квартира, расположенная на 3 этаже 15-этажного панельного дома, построенного в 1997 году. Общая площадь квартиры составляет 38.7 кв. м, из которых 19.9кв. м — жилая, а кухня занимает 9.9 кв. м. Высота потолков — 2.58 метра. Дом находится по адресу: Россия, Санкт-Петербург, Богатырский проспект, 29к1, всего в 14 минутах пешком от станции метро ''Комендантский проспект''.
Квартира без ремонта, что дает возможность новому владельцу воплотить свои дизайнерские идеи и создать интерьер по своему вкусу. Планировка включает одну просторную комнату, кухню и отдельный санузел. Также есть застекленный балкон,где можно обустроить уютное место для отдыха.Выход на балкон из кухни.
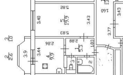
Продается однокомнатная неугловая очень тёплая квартира, расположенная на 3 этаже 15-этажного панельного дома, построенного в 1997 году. Общая площадь квартиры составляет 38.7 кв. м, из которых 19.9кв. м — жилая, а кухня занимает 9.9 кв. м. Высота потолков — 2.58 метра. Дом находится по адресу: Россия, Санкт-Петербург, Богатырский проспект, 29к1, всего в 14 минутах пешком от станции метро ''Комендантский проспект''.
Квартира без ремонта, что дает возможность новому владельцу воплотить свои дизайнерские идеи и создать интерьер по своему вкусу. Планировка включает одну просторную комнату, кухню и отдельный санузел. Также есть застекленный балкон,где можно обустроить уютное место для отдыха.Выход на балкон из кухни.
Дом в хорошем состоянии, оснащен двумя пассажирскими лифтами, что исключает длительное ожидание подъема. Для жильцов предусмотрена удобная парковка.
Рядом с домом находится вся необходимая инфраструктура для комфортной жизни: школы, детские сады, клиники и разнообразные магазины. Это идеальное место для семей с детьми или тех, кто ценит возможность быстро добраться до всех нужных объектов.Один взрослый собственник. зарегистрированные лица отсутствуют.Окна на Богатырский проспект.Полная стоимость по договору. подъезд 4.