Если цена в объявлении изменится, мы сразу сообщим вам об этом на электронную почту.
Нажимая «Подписаться», вы соглашаетесь с правилами.
продам 1-к квартира11 919 326 ₽
12 янв
Дата публикации объявления
Обн. вчера
Дата обновления объявления
502 289 ₽/м²
Чистая продажа
Термин "Чистая продажа" означает, что в квартире никто не прописан или
есть куда выписаться и вывезти вещи. Это лучший вариант для покупателя.
Вероятность срыва сделки минимальна.
Квартира
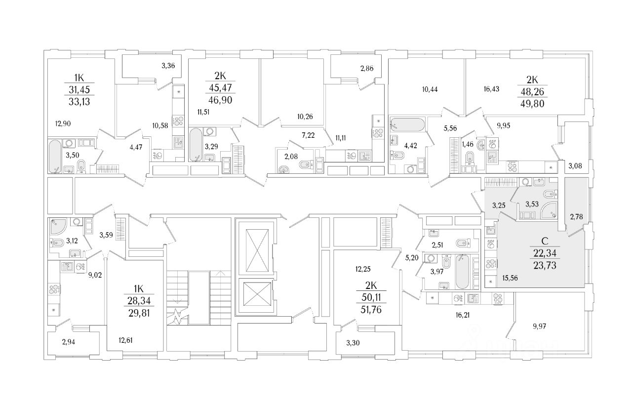
Общая площадь23,73 м2
Жилая площадь15,6 м2
Тип квартирыстудия
Количество лоджий1
Тип собственностидоговор долевого участия
Дом
Срок сдачи2 кв. 2028 г.
Этаж7 из 13
Материал домамонолит
Продаётся Студия в ЖК Гранат от застройщика Группа компаний ''РСТИ'' (Росстройинвест). Квартира находится в 13 этажном доме, в Гранат - Корпус К1 на 7 этаже. Общая площадь квартиры 23,73 кв.м.
Жилой комплекс ''Гранат'' расположен во Фрунзенском районе, у станции метро ''Бухарестская'', на улице Фучика, д. 12.
Местоположение обладает уникальным балансом транспортной доступности — отсюда легко доехать и в центральную часть города, и в окраинные районы. Можно без пересадок на наземном транспорте за 20 минут добраться до Невского проспекта или на личном автомобиле до аэропорта Пулково. Все остановки транспорта расположены в пешей доступности от объекта. По Софийской улице можно удобно выехать на КАД.
Здания получили современный, выразительный облик.
Продаётся Студия в ЖК Гранат от застройщика Группа компаний ''РСТИ'' (Росстройинвест). Квартира находится в 13 этажном доме, в Гранат - Корпус К1 на 7 этаже. Общая площадь квартиры 23,73 кв.м.
Жилой комплекс ''Гранат'' расположен во Фрунзенском районе, у станции метро ''Бухарестская'', на улице Фучика, д. 12.
Местоположение обладает уникальным балансом транспортной доступности — отсюда легко доехать и в центральную часть города, и в окраинные районы. Можно без пересадок на наземном транспорте за 20 минут добраться до Невского проспекта или на личном автомобиле до аэропорта Пулково. Все остановки транспорта расположены в пешей доступности от объекта. По Софийской улице можно удобно выехать на КАД.
Здания получили современный, выразительный облик. Запоминающийся образ создан благодаря пластике фасадов и дизайну входной группы, отсылающему к граням драгоценного камня.
Двусветный холл связывает пространства внутреннего двора и улицы, является порталом в обособленный тихий двор жилого комплекса. Высокие витражи обеспечивают просматриваемость пространства, приглашая пройти внутрь.
Концепция благоустройства делит пространство всего комплекса на три отдельных двора. Три двора соединены между собой визуально и с помощью шаговых дорожек, утопленных в рельеф. Деревья, кустарники, высокие газоны, рельеф со злаковыми растениями и прочими травами создают ощущение близости к природе.
В ''Гранате'' были созданы особые квартиры. Они предлагают по-новому взглянуть на привычную жизнь и дополнить ее творческими и функциональными акцентами. Ключевое слово в них — больше. Больше света, больше свободы и больше общения с близкими.
Кухни-гостиные с угловым остеклением. Просторные кухни-гостиные площадью более 20 м². Студии с двумя окнами. Ванные с окном под потолком. Кухни-гостиные с выделенной нишей под кухню. Спальни с выделенной многофункциональной зоной, в которой можно организовать свой идеальный уголок. Квартиры с просторными лоджиями правильной квадратной формы.
''Гранат'' — технологичный дом. Инженерные системы выполнены на базе прогрессивных решений для удобной жизни. Рациональный подход охватывает все аспекты комфорта: от контроля доступа до систем водоснабжения и размещения кондиционеров.