Если цена в объявлении изменится, мы сразу сообщим вам об этом на электронную почту.
Нажимая «Подписаться», вы соглашаетесь с правилами.
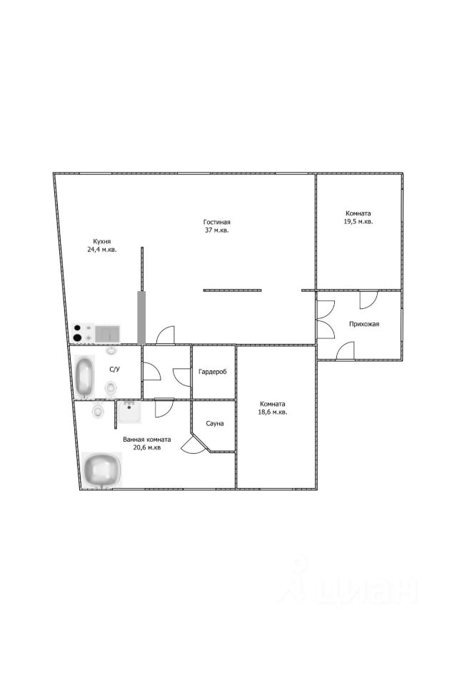
продам 3-к, Зайцева, 441 900 000 ₽
3 янв
Дата публикации объявления
Обн. 4 мая
Дата обновления объявления
3
Количество просмотров (+ просмотры за сегодня)
260 248 ₽/м²
Чистая продажа
Термин "Чистая продажа" означает, что в квартире никто не прописан или
есть куда выписаться и вывезти вещи. Это лучший вариант для покупателя.
Вероятность срыва сделки минимальна.
Эксклюзивная, роскошная квартира 161 м2, ул. Зайцева, дом 4. Преимущества: (+) Удобная и функциональная планировка с различными видами помещений. На общей площади 161 кв.м разместились кухня 24.4 кв.м.,гостиная 37 кв.м, спальня 18.6 кв.м, кабинет/ детская 19.5 кв.м, просторная прихожая, большая ванная комната 20.6 м2 с сауной, второй сан. узел и гардеробная.
(+) Авторский проект квартиры сочетает лучшие традиции классицизма и современные требования к комфортному проживанию. В интерьере использованы только натуральные материалы. Паркет, окна, двери из натурального дерева, а классическая мебель, настоящая лепнина и итальянские светильники добавляют неповторимую атмосферу интерьеру.
(+)Дом построен по индивидуальному проекту.
Эксклюзивная, роскошная квартира 161 м2, ул. Зайцева, дом 4. Преимущества: (+) Удобная и функциональная планировка с различными видами помещений. На общей площади 161 кв.м разместились кухня 24.4 кв.м.,гостиная 37 кв.м, спальня 18.6 кв.м, кабинет/ детская 19.5 кв.м, просторная прихожая, большая ванная комната 20.6 м2 с сауной, второй сан. узел и гардеробная.
(+) Авторский проект квартиры сочетает лучшие традиции классицизма и современные требования к комфортному проживанию. В интерьере использованы только натуральные материалы. Паркет, окна, двери из натурального дерева, а классическая мебель, настоящая лепнина и итальянские светильники добавляют неповторимую атмосферу интерьеру.
(+)Дом построен по индивидуальному проекту. Кирпичный, теплый, с высокими потолками, имеет 4 парадные и свой тихий дворик. В нашей парадной всего 4 квартиры, приличные и дружные соседи. Обеспечено круглосуточное видеонаблюдение. (+) Отлично развитое транспортное сообщение дает возможность быстро добраться как до центра, так и до удаленных районов Санкт-Петербурга, дом расположен в 2 минутах от Метро Автово, рядом в 5 минутах удобный выезд на ЗСД. (+) Прямая продажа, 1 собственник более 5 лет, обременений нет, полная стоимость в договоре.Документы готовы. Ждем новых владельцев.