В продаже, 2-комнатная квартира.
СЕСТРОРЕЦК, Приморское шоссе дом 300.
КИРПИЧНЫЙ дом.
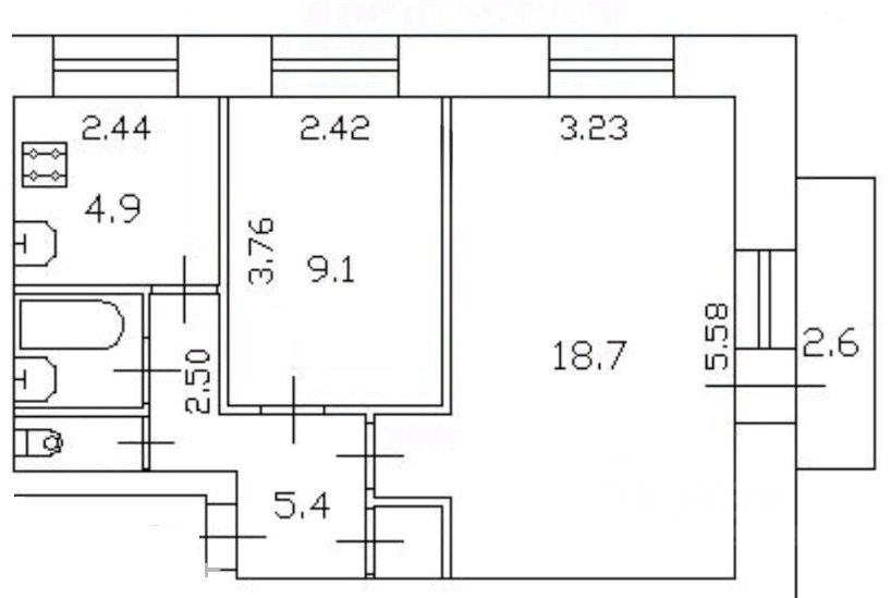
ОБЩАЯ ПЛОЩАДЬ - 41,8 кв.м.
Жилая площадь - 28 кв.м.
КУХНЯ - 5 кв.м.
Квартира БЕЗ ДОЛГОВ и ОБРЕМЕНЕНИЙ.
Перепланировок НЕТ.
Возможна покупка квартиры в ипотеку.
В договоре покажем ПОЛНУЮ стоимость.
Владение квартирой свыше 20 лет, ДКП без МК.
Встречная покупка.
В шаговой доступности есть все необходимые объекты инфраструктуры (школы, садики, магазины).
ПРОСМОТР квартиры возможен по предварительной договоренности.
Если вы видите это объявление, то квартире еще продается!







