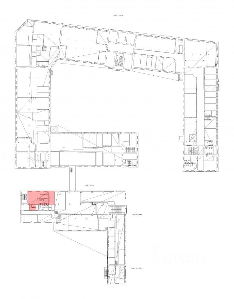
Сдаётся в аренду блок площадью 119.4 кв. м
под производство в Калининском районе города. Кабинетная планировка. Возможность организации разных зон. Оснащение: выделенная эл.мощность 25 кВт, пожарная сигнализация, отопление, освещение, ХВС, водоотведение, высокоскоростной интернет, цифровая телефония. Действует система СКУД. Проход осуществляется по электронным картам доступа. На территории есть столовая, парковка. Расположение: ул. Комсомола, д.1-3. Более подробную информацию можете узнать у менеджеров колл-центра.








