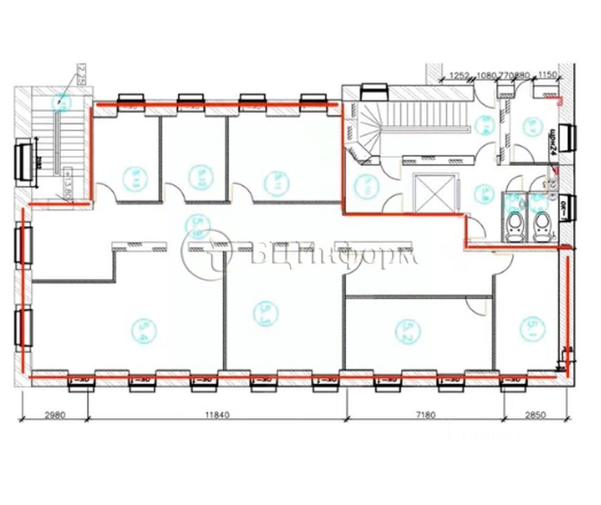
Сдается в аренду офисное помещение общей площадью 218,6 м2.
Расположен на 5 этаже бизнес-центра. Кабинетная планировка.
В хорошем состоянии. Выполнена офисная отделка.
Офис имеет удобные подъездные пути и хорошую транспортную развязку. Неподалеку расположены станции метро ''Площадь Александра Невского'' и ''Новочеркасская''. Ближайшие железнодорожные станции Московский и Финляндский вокзалы. Поблизости проходят Новгородская улица, Суворовский проспект, Тульская улица и Синопская набережная.
Готово к въезду. Договор аренды напрямую с собственником.



























