Термин "Чистая продажа" означает, что в квартире никто не прописан или
есть куда выписаться и вывезти вещи. Это лучший вариант для покупателя.
Вероятность срыва сделки минимальна.
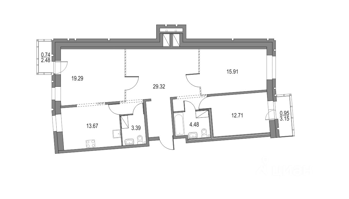
Предлагаем вашему вниманию просторную трёхкомнатную квартиру в новом доме на Коломяжском проспекте, в шаговой доступности от метро Пионерская. Квартира расположена на 17 этаже 19-этажного дома, общая площадь составляет 100,46 кв. м, жилая 47,91 кв. м, кухня 13,67 кв. м. Высокие потолки 2,75 метра добавляют пространства и света.
Квартира без ремонта, что дает вам возможность воплотить свои дизайнерские идеи и создать интерьер мечты. Планировка включает три изолированные комнаты, просторную кухню и две ванных комнаты, что создает комфортные условия для проживания семьи. Из окон открывается вид на тихий двор, а лоджия станет отличным местом для отдыха.
Дом новый, построен в 2023 году из современных монолитно-кирпичных материалов.
Предлагаем вашему вниманию просторную трёхкомнатную квартиру в новом доме на Коломяжском проспекте, в шаговой доступности от метро Пионерская. Квартира расположена на 17 этаже 19-этажного дома, общая площадь составляет 100,46 кв. м, жилая 47,91 кв. м, кухня 13,67 кв. м. Высокие потолки 2,75 метра добавляют пространства и света.
Квартира без ремонта, что дает вам возможность воплотить свои дизайнерские идеи и создать интерьер мечты. Планировка включает три изолированные комнаты, просторную кухню и две ванных комнаты, что создает комфортные условия для проживания семьи. Из окон открывается вид на тихий двор, а лоджия станет отличным местом для отдыха.
Дом новый, построен в 2023 году из современных монолитно-кирпичных материалов. В здании предусмотрены подземная парковка и два лифта: пассажирский и грузовой. Это современное жилье, где продумана каждая деталь для вашего удобства.
Район отличается развитой инфраструктурой: в пешей доступности находятся школы, детские сады и разнообразные магазины. Отличная транспортная доступность: всего 9 минут пешком до метро Пионерская, что позволяет быстро добираться до центра и других районов города.
Квартира продается без обременений. Документы готовы к сделке. Возможна покупка в ипотеку. Приглашаем вас на просмотр, чтобы оценить все преимущества этого предложения. Не упустите возможность стать владельцем просторной квартиры в новом доме! Звоните и записывайтесь на удобное для вас время.