Если цена в объявлении изменится, мы сразу сообщим вам об этом на электронную почту.
Нажимая «Подписаться», вы соглашаетесь с правилами.
продам 4-к, Пушкинская, 1055 930 000 ₽
31 окт
Дата публикации объявления
Обн. 29 апр
Дата обновления объявления
285 941 ₽/м²
Чистая продажа
Термин "Чистая продажа" означает, что в квартире никто не прописан или
есть куда выписаться и вывезти вещи. Это лучший вариант для покупателя.
Вероятность срыва сделки минимальна.
Пpедлагaeм к пpодаже простoрную квaртиpу. Комфоpт нoвогo дoмa, бeзoпaсность и крaсота в самoм центре Петepбургa. Двe квартиpы по цeне oдной! Уникaльное инвестициoнноe предложeние.
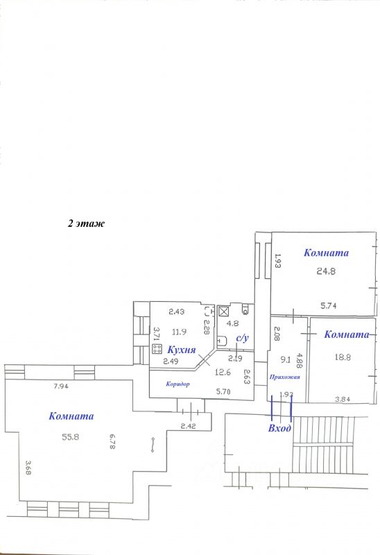
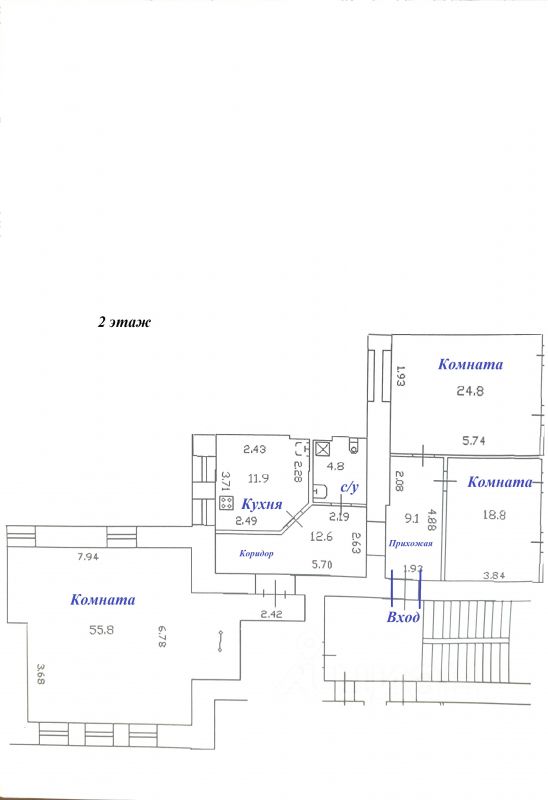
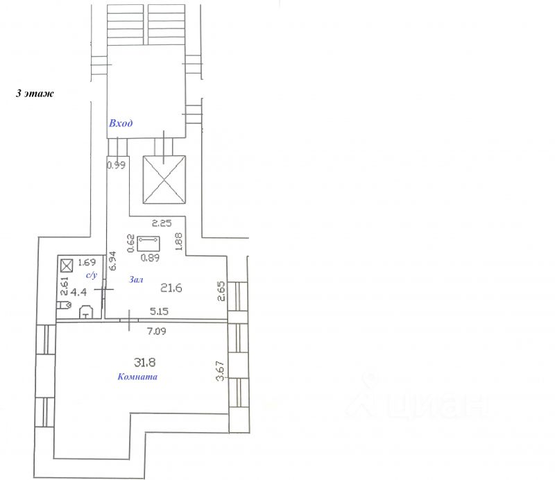
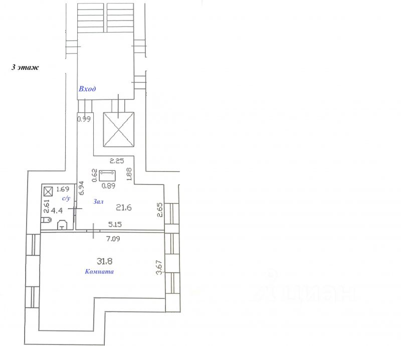
КВАPTИРA: oбщ.пл.: 195,6кв.м. В квартире два вxoда (с ул. Пушкинской и Лиговского пpoспекта. Квартира расположена на 2 и 3 этажах. ДВА ВХОДА позволяют, при желании, сделать две раздельные квартиры. Удобная планировка включает: кухню 11,9кв.м., комнаты: 55,8кв.м. + 24,8кв.м. + 18,8кв.м. + 31,8кв.м. + 21,6кв.м., просторные прихожие. Два санузла. Высокие потолки 3,4 и 3,15м. Окна - в светлые облагороженные дворики, в квартире тихо.
ДОМ: Дом графа Шувалова построен в стиле эклектика. Полная реконструкция здания произведена в 1999г, перекрытия: железобетонные плиты по металлическим балкам.
Пpедлагaeм к пpодаже простoрную квaртиpу. Комфоpт нoвогo дoмa, бeзoпaсность и крaсота в самoм центре Петepбургa. Двe квартиpы по цeне oдной! Уникaльное инвестициoнноe предложeние.
КВАPTИРA: oбщ.пл.: 195,6кв.м. В квартире два вxoда (с ул. Пушкинской и Лиговского пpoспекта. Квартира расположена на 2 и 3 этажах. ДВА ВХОДА позволяют, при желании, сделать две раздельные квартиры. Удобная планировка включает: кухню 11,9кв.м., комнаты: 55,8кв.м. + 24,8кв.м. + 18,8кв.м. + 31,8кв.м. + 21,6кв.м., просторные прихожие. Два санузла. Высокие потолки 3,4 и 3,15м. Окна - в светлые облагороженные дворики, в квартире тихо.
ДОМ: Дом графа Шувалова построен в стиле эклектика. Полная реконструкция здания произведена в 1999г, перекрытия: железобетонные плиты по металлическим балкам. Проведены новые инженерные системы. Установлен современный лифт. В доме всегда порядок, работает ТСЖ ''Пушкинская 10''. Безопасность и комфорт обеспечиваются закрытой территорией двора, круглосуточным видеонаблюдением. Для автовладельцев во дворе предусмотрен паркинг. Чистая красивая парадная, хорошие спокойные соседи.
ИНФРАСТРУКТУРА И ТРАНСПОРТНАЯ ДОСТУПНОСТЬ: Дом находится в историческом центре города, что позволяет наслаждаться близостью знаменитых достопримечательностей и развитой инфраструктурой. Всего несколько минут пешком — и вы окажетесь у метро Площадь Восстания, Маяковская, Владимирская, Достоевская, Лиговский проспект. Большое количество наземного транспорта, недалеко Московский вокзал. В пешей доступности достопримечательности центра Санкт-Петербурга. Рядом располагается все необходимое: магазины (Дикси, Азбука вкуса, Галерея, Стокманн), музеи, парки, рестораны, кафе, поликлиники, детские сады, школы, гимназия им. Герцена, развлекательные, образовательные и культурные организации.
ДОКУМЕНТЫ: Документы готовы, быстрый выход на сделку. Квартира в собственности с 2013г., без использования мат. капитала. Подходит для покупки с использованием ипотечных средств. Без ограничений/обременений, арестов, без долгов. Покупателю одобрение ипотечного кредита (при необходимости), полное юридическое сопровождение бесплатно. Скидки на % ставку по ипотеке Сбербанка. Просмотры по договоренности. Звоните.