Если цена в объявлении изменится, мы сразу сообщим вам об этом на электронную почту.
Нажимая «Подписаться», вы соглашаетесь с правилами.
продам 1-к, Кустодиева, 5 корп. 110 250 000 ₽
22 окт
Дата публикации объявления
Обн. вчера
Дата обновления объявления
299 708 ₽/м²
Чистая продажа
Термин "Чистая продажа" означает, что в квартире никто не прописан или
есть куда выписаться и вывезти вещи. Это лучший вариант для покупателя.
Вероятность срыва сделки минимальна.
Под чистовая отделка: Пол: стяжка, санузел — обмазочная гидроизоляция, стяжка Стены: шпатлевка с предварительной грунтовкой Потолок: шпатлевка с предварительной грунтовкой, коридоры, кладовки, санузел — шлифовка Электрика: розетки, выключатели, патроны Сантехника: радиаторы, счетчики холодной и горячей воды Прочее: пожарная сигнализация — установка базовых модулей, датчики пожарной сигнализации передаются клиенту без установки, окна — металлопластиковые, без установки подоконников и выполнения пластиковых откосов, входная металлическая дверь
О ДОМЕ: Сдан в 2025 году, построен по кирпично-монолитной технологии с навесным вентилируемым фасадом.
ID 341016
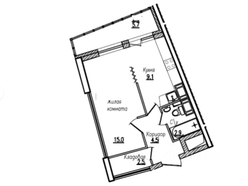
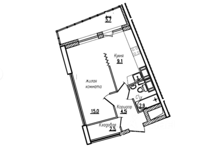
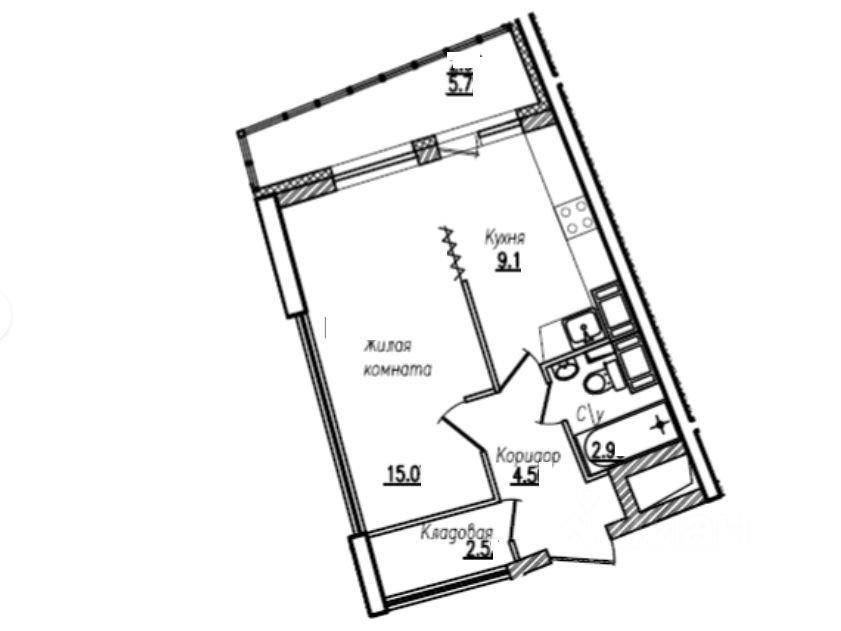
О КВАРТИРЕ:
Окна смотрят во внутренний двор.
Под чистовая отделка: Пол: стяжка, санузел — обмазочная гидроизоляция, стяжка Стены: шпатлевка с предварительной грунтовкой Потолок: шпатлевка с предварительной грунтовкой, коридоры, кладовки, санузел — шлифовка Электрика: розетки, выключатели, патроны Сантехника: радиаторы, счетчики холодной и горячей воды Прочее: пожарная сигнализация — установка базовых модулей, датчики пожарной сигнализации передаются клиенту без установки, окна — металлопластиковые, без установки подоконников и выполнения пластиковых откосов, входная металлическая дверь
О ДОМЕ: Сдан в 2025 году, построен по кирпично-монолитной технологии с навесным вентилируемым фасадом. Благоустроенные дворы с детскими и спортивными площадками.
ИНФРАСТРУКТУРА: ЖК находится в Выборгском районе. В 5 минутах пешком находятся детские сады и школы, самые современные, оборудованы бассейнами. В шаговой доступности находится крупный образовательный центр дополнительного образования детская школа искусств им. Свиридова. Различные спортивные и оздоровительные комплексы, такие как открытая ледовая арена, аквапарк и др., располагаются в 10 минутах пешком. В шаговой доступности магазины, кафе, салоны красоты, банкоматы. Станция метро проспект Просвещения и Гражданский проспект в 10 минутах транспортом, выезд на КАД 5 мин на авто.
УСЛОВИЯ И СДЕЛКА: Прямая продажа, один собственник, без обременений, любая форма оплаты( ипотека, субсидия, материнский капитал). Показ квартиры в удобное для вас время заранее по договоренности! Звоните и записывайтесь на просмотр! Не упустите возможность стать обладателем это прекрасной квартиры!