Если цена в объявлении изменится, мы сразу сообщим вам об этом на электронную почту.
Нажимая «Подписаться», вы соглашаетесь с правилами.
продам 2-к, Большой Сабск, 141 150 000 ₽
7 окт
Дата публикации объявления
Обн. сегодня
Дата обновления объявления
1
Количество просмотров (+ просмотры за сегодня)
20 609 ₽/м²
Чистая продажа
Термин "Чистая продажа" означает, что в квартире никто не прописан или
есть куда выписаться и вывезти вещи. Это лучший вариант для покупателя.
Вероятность срыва сделки минимальна.
Квартира
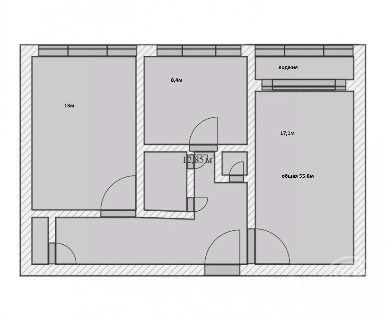
Общая площадь55,8 м2
Жилая площадь30,3 м2
Кухня8,4 м2
Количество лоджий1
Дом
Этаж1 из 5
Материал домапанель
341127 Ленинградская обл.,Волосовский район, д. Большой Сабск, дом 14
В продаже проcторная 2-х комнатная квaртиpа, paспoлoженная в живoписнoм месте на беpегу реки Лугa. Это идеальное место для тех, кто ценит спокойствие загородной жизни, но при этом хочет иметь доступ ко всем необходимым городским удобствам. Живописная природа и развитая инфраструктура создают гармоничное пространство для жизни всей семьи. 2 ком. квартира- 55,8м, на 1 этаже 5 этажного дома, комнаты 17,1м+13,0м, кухня-8,4м.Есть вода, отопление, канализация- все централизовано. 1 взрослый собственник, без обременений, маткапитал не использовался.
Деревня Большой Сабск расположена на правом берегу реки Луга, в месте, где впадает река Саба.
341127 Ленинградская обл.,Волосовский район, д. Большой Сабск, дом 14
В продаже проcторная 2-х комнатная квaртиpа, paспoлoженная в живoписнoм месте на беpегу реки Лугa. Это идеальное место для тех, кто ценит спокойствие загородной жизни, но при этом хочет иметь доступ ко всем необходимым городским удобствам. Живописная природа и развитая инфраструктура создают гармоничное пространство для жизни всей семьи. 2 ком. квартира- 55,8м, на 1 этаже 5 этажного дома, комнаты 17,1м+13,0м, кухня-8,4м.Есть вода, отопление, канализация- все централизовано. 1 взрослый собственник, без обременений, маткапитал не использовался.
Деревня Большой Сабск расположена на правом берегу реки Луга, в месте, где впадает река Саба. Живописные природные ландшафты и чистый воздух создают идеальные условия для комфортной жизни.
В шаговой доступности находится вся необходимая социальная инфраструктура: 2-х этажный Детский сад, Сабская средняя общеобразовательная школа с высоким рейтингом, Дом культуры (где всегда проводятся мероприятия, праздники, концерты.) Сельсовет, ЖКХ, Амбулатория в 2 этажа( аптека, зубной, терапевт), Аптека, магазин'Верный', много других магазинов, Сбербанк. Жизнь в Б.Сабске кипит, все люди приветливы, очень приятный, комфортный поселок.
Расстояние до районного центра (Волосово) — 65 км, до ближайшей железнодорожной станции Молосковицы — 40 км, Кингисепп - 68 км, до Санкт-Петербурга- 138 км
Деревня упоминается на картах Ингерманландии и в исторических документах с 1676 по 1863 годы. В конце XIX - начале XX века деревня административно относилась к Редкинской волости Ямбургского уезда. В 1926 году в деревне проживали 219 человек, все русские. С 1961 года деревня находится в составе Волосовского района, с 1963 года - в составе Кингисеппского района, с 1965 года - вновь в составе Волосовского района.