Если цена в объявлении изменится, мы сразу сообщим вам об этом на электронную почту.
Нажимая «Подписаться», вы соглашаетесь с правилами.
продам дом, Героев проспект, 949 000 000 ₽
3 окт
Дата публикации объявления
Обн. 12 мая
Дата обновления объявления
5
Количество просмотров (+ просмотры за сегодня)
365 672 ₽/м²
Чистая продажа
Термин "Чистая продажа" означает, что в квартире никто не прописан или
есть куда выписаться и вывезти вещи. Это лучший вариант для покупателя.
Вероятность срыва сделки минимальна.
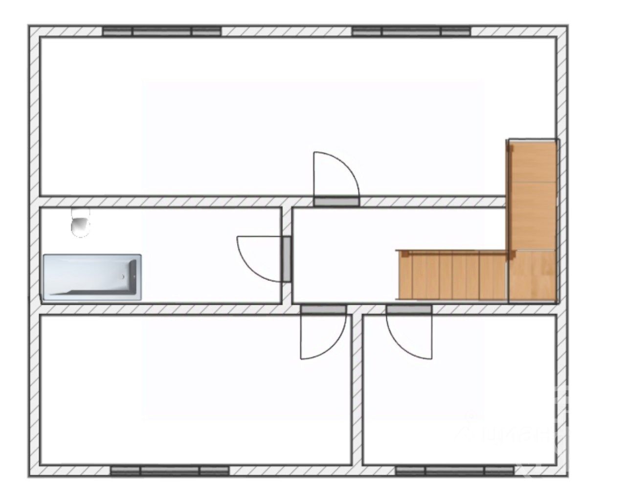
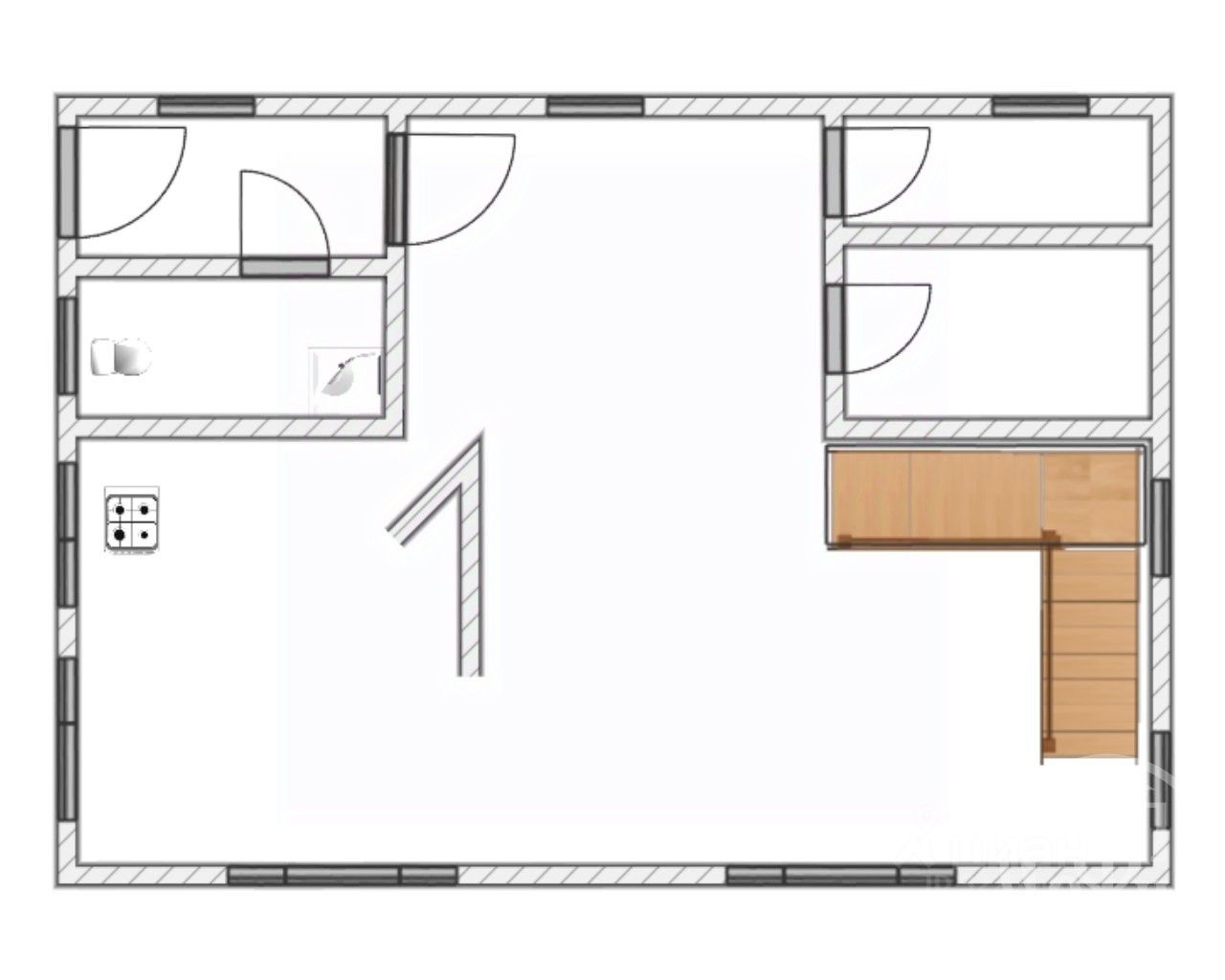
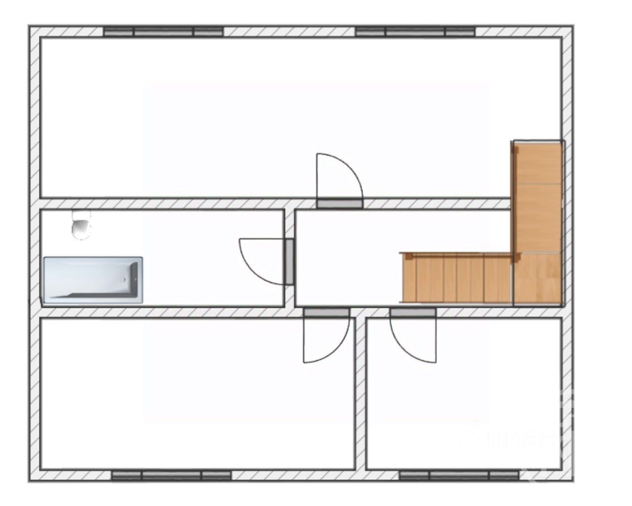
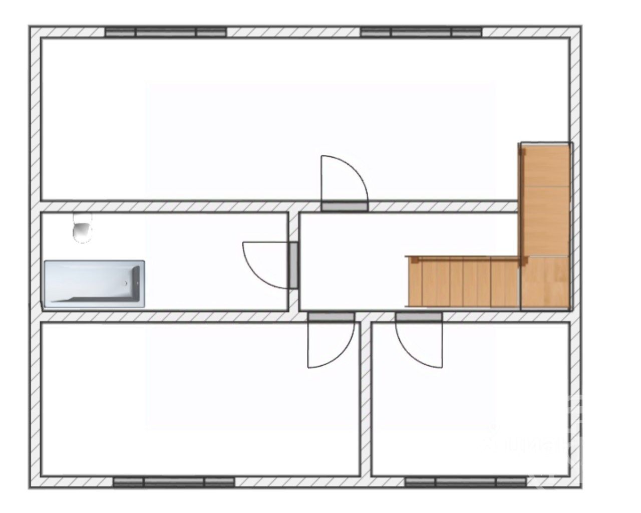
Этажей2
Площадь участка8 соток
Общая площадь134 м2
ЭлектричествоЕсть
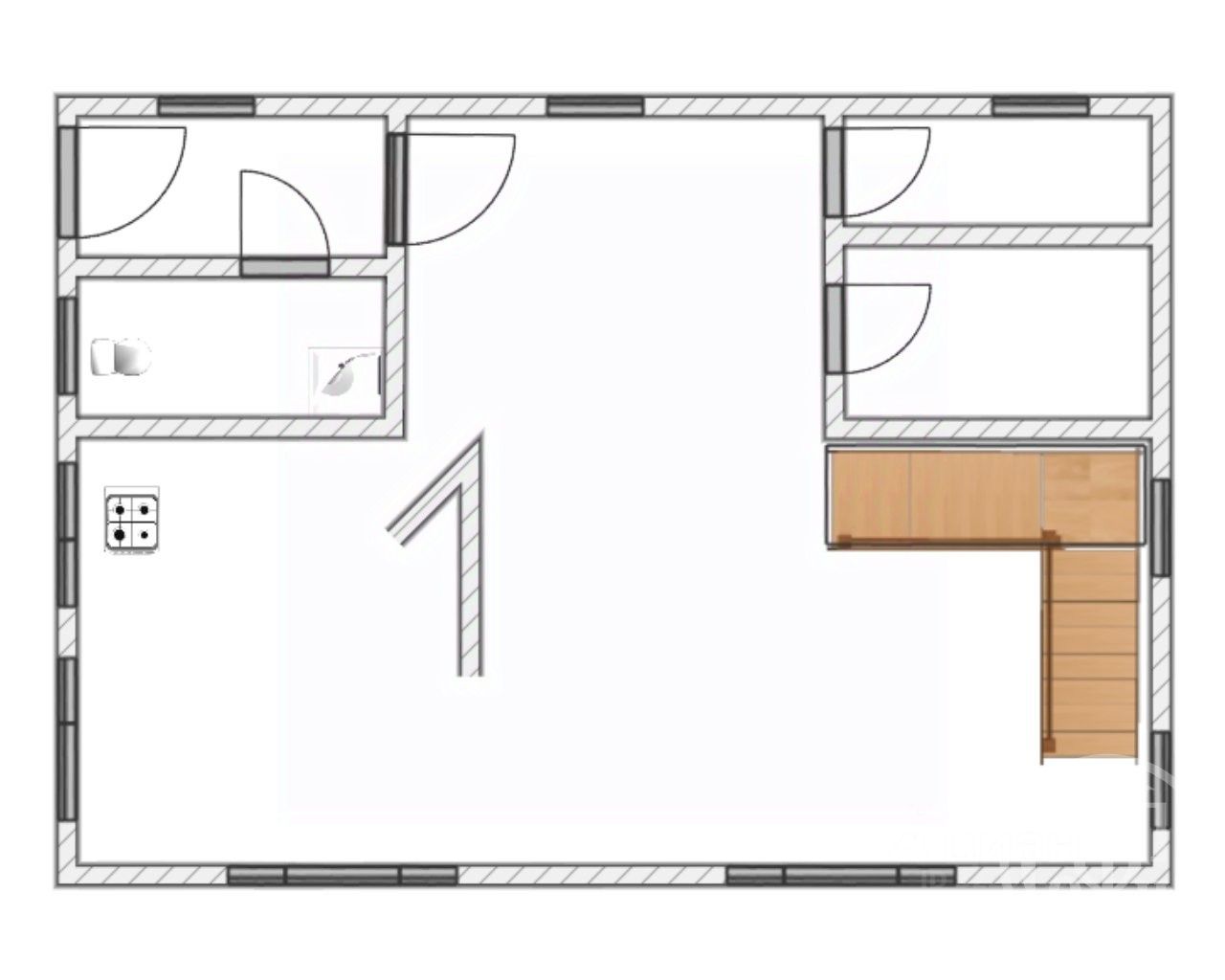
340953 В тихом уединенном месте в г. Зеленогорске на ул. Героев предлагается 2 новых зимних жилых дома площадью 134 кв.м. и 132,4 кв.м. Оба дома возведены на железобетонной плите на песчаной подушке, материал стен газобетон, утепление снаружи пеноплекс 40 мм, отделка шуба и короед, шведская металлочерепица пуралл. Отделка внутри стены — штукатурка под покраску, пол керамогранит, на вторых этажах полы — паркетная доска из дуба и ясеня. Дома построены в 2009 г. и 2013 г. Планировки схожи. На 1 этажах располагаются прихожая, просторный холл, техническое помещение (котельная), гардеробная, кухня - гостиная с большой обеденной зоной 47 кв.м. По всему 1 эт водяные теплые полы. На вторых этажах в одном доме 2 изолированные спальни 28 + 24 кв.м., в другом 3 изолированные спальни 24 +14+14 кв.
340953 В тихом уединенном месте в г. Зеленогорске на ул. Героев предлагается 2 новых зимних жилых дома площадью 134 кв.м. и 132,4 кв.м. Оба дома возведены на железобетонной плите на песчаной подушке, материал стен газобетон, утепление снаружи пеноплекс 40 мм, отделка шуба и короед, шведская металлочерепица пуралл. Отделка внутри стены — штукатурка под покраску, пол керамогранит, на вторых этажах полы — паркетная доска из дуба и ясеня. Дома построены в 2009 г. и 2013 г. Планировки схожи. На 1 этажах располагаются прихожая, просторный холл, техническое помещение (котельная), гардеробная, кухня - гостиная с большой обеденной зоной 47 кв.м. По всему 1 эт водяные теплые полы. На вторых этажах в одном доме 2 изолированные спальни 28 + 24 кв.м., в другом 3 изолированные спальни 24 +14+14 кв.м., второй с/ у (ванна — джакузи, биде, раковина). Дорогая и удобная лестница выполнена из бука. Бытовая техника и мебель в подарок. Качественные отделочные материалы. Кабельное ТV, интернет оптоволокно. Отличное состояние. Участок 8 соток, выполнен дренаж, посеян газон, каменной плиткой выделена зона мангала, украшен хвойниками. Участок огорожен надежным забором на ленте, откатные ворота. Подъезд - асфальт. Земельный участок расположен на землях населенных пунктов, вид разрешенного использования - для индивидуального жилищного строительства. Собственность. Канализация — биостанция Астра — 5, эл-во 15 кВт, отопление — газовый котел ВАХi. Вода — центральный водопровод. Место уникальное по своему расположению: Финский залив - 20 мин неспешного шага, отлично развитая инфраструктура и транспортная доступность. Великолепная природа, множество зон отдыха, кофейни, рестораны и магазины сделают Ваше времяпрепровождения незабываемым! Сосновый лес в 2 минутах ходьбы.