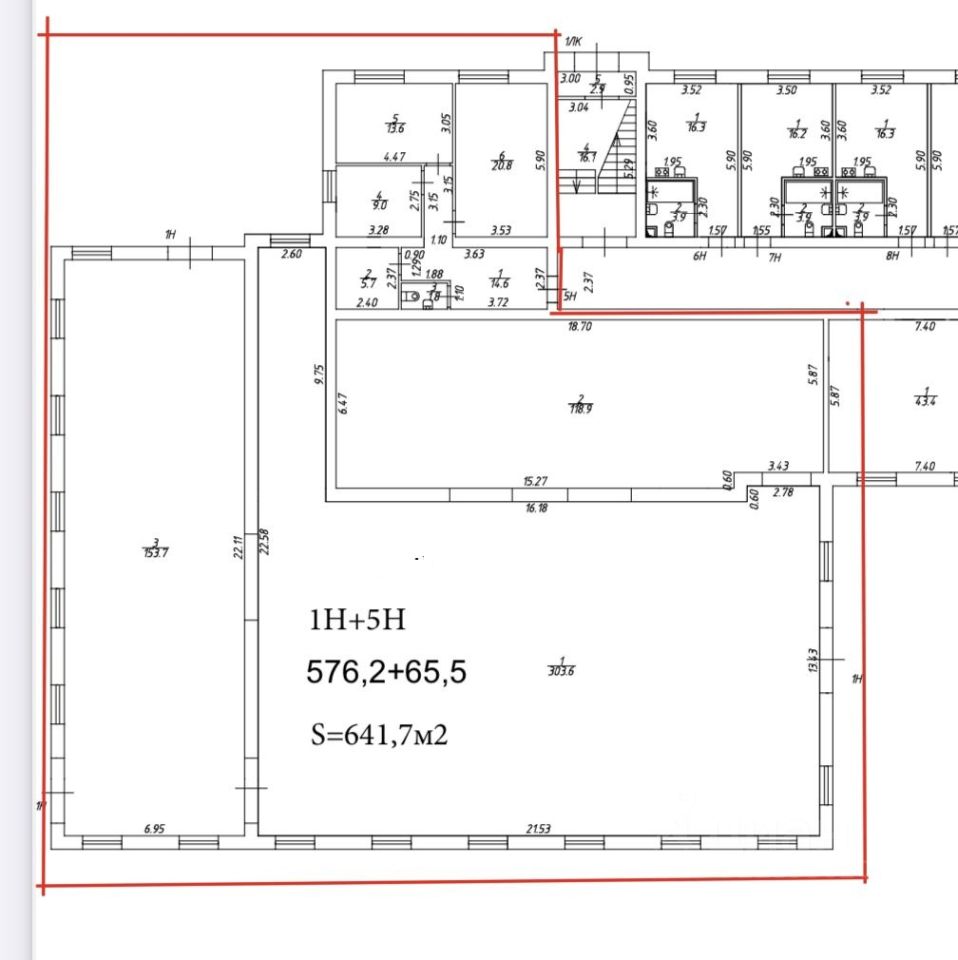
Продается помещение свободного назначения с 3-я отдельными входами, с 2-я подъездами для автотранспорта, расположенное в одноэтажной пристройке 5-этажного апарт-отеля с помещениями социального и сервисного обслуживания, объектов инфраструктуры вспомогательного, социального и коммунально-бытового назначения, включая гостиничный комплекс на земельном участке площадью 6647 кв.м. Высота одноэтажной пристройки 5,5 м. В здании проведен капремонт. Коммуникации: - система электроснабжения мощностью 50 кВт, II категории, - система холодного и горячего водоснабжения, водоотведения, - система отопления 0,72 Гкал/час.
Продается помещение свободного назначения с 3-я отдельными входами, с 2-я подъездами для автотранспорта, расположенное в одноэтажной пристройке 5-этажного апарт-отеля с помещениями социального и сервисного обслуживания, объектов инфраструктуры вспомогательного, социального и коммунально-бытового назначения, включая гостиничный комплекс на земельном участке площадью 6647 кв.м. Высота одноэтажной пристройки 5,5 м. В здании проведен капремонт. Коммуникации: - система электроснабжения мощностью 50 кВт, II категории, - система холодного и горячего водоснабжения, водоотведения, - система отопления 0,72 Гкал/час. Земельный участок в собственности, категория - земли населенных пунктов, вид разрешенного использования- для размещения объектов гостиничного обслуживания, социального и сервисного обслуживания, объектов инфраструктуры вспомогательного, социального и коммунально-бытового назначения, магазины. Документы готовы, быстрый выход на сделку. Просмотры в любое удобное для вас время.