В продаже однокомнатная квартира с просторной кухней-гостиной в ЖК Neva Residence.
Дом расположен на берегу Петровского острова, в шаговой доступности обустраивают собственную набережную, недалеко расположен Петровский пруд. По периметру территории установлена система видео наблюдения, круглосуточная охрана.
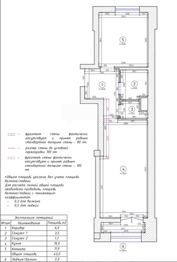
Квартира имеет двустороннюю планировку, окна спальни выходят в закрытый двор, окна кухни-гостиной на Неву и мост Бетанкура. В квартире выполнена коллекторная разводка отопления, предусмотрен доп. вентиляционный канал, сплит-шахты для монтажа кондиционеров, четырехступенчатая очистка воды.
Так же в продаже идентичная квартира расположенная на шестом этаже.
















