Аренда офиса в Центральном районе, в пятнадцати минутах ходьбы от станции метро Площадь Александра Невского.
Офис расположен в бизнес центре класса B+.
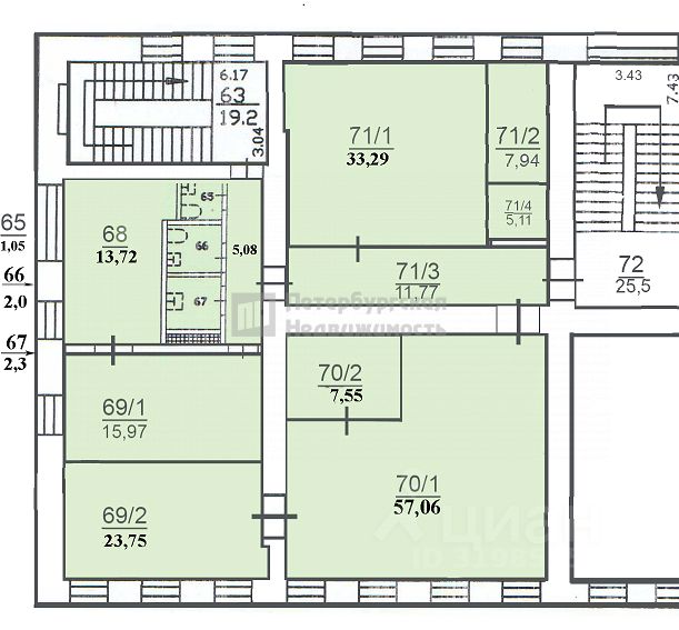
Технические характеристики:
Площадь 186 м2
4 этаж
Аренда: 2300 руб. м2 - 427 800 руб.
Смешанная планировка
Кондиционирование
Приточно- вытяжная вентиляция
Круглосуточная охрана
Режим работы 24/7
Паркинг: 1 м/м включены в стоимость
НДС / УСН
КУ включены ( эл. отдельно)
Прямая аренда. Без комиссии!
Звоните!
Арт. 44049339












