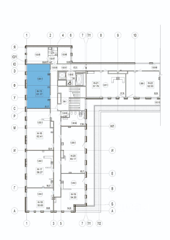
Помещение свободного назначения класса ''бизнес'' 61.17 м² в ЖК ''АйДи Политех (iD Polytech)'' с выдержанными фасадами и превосходным витражным остеклением и современной инженерией. Каждому коммерческому помещению выделена зона для стилизованной вывески. Каждое помещение оборудовано индивидуальным вентиляционным каналом. Высота потолков 4,5 метра. Выделенная мощность 0,2 КВт на 1 метр квадратный.