Если цена в объявлении изменится, мы сразу сообщим вам об этом на электронную почту.
Нажимая «Подписаться», вы соглашаетесь с правилами.
продам дом, д. Лагоново, 15а6 500 000 ₽
18 июня 2025
Дата публикации объявления
Обн. 18 июня 2025
Дата обновления объявления
39 228 ₽/м²
Чистая продажа
Термин "Чистая продажа" означает, что в квартире никто не прописан или
есть куда выписаться и вывезти вещи. Это лучший вариант для покупателя.
Вероятность срыва сделки минимальна.
Этажей2
Площадь участка9,35 соток
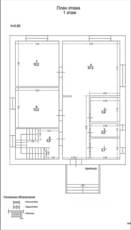
Общая площадь165,7 м2
ЭлектричествоЕсть
Газоснабжениецентральное
В продаже просторный зимний дом 2023 года постройки в д.Лагоново по отличной цене.
Тихий район с развитой инфраструктурой: в шаговой доступности г.Волосово с магазинами, школами, садами, банками, больницей, поликлиникой, спортивным комплексом, кафе и ресторанами. Но в то же время это приватное место. В пешей доступности ж/д станция, маршрутка до СПБ. До центра СПБ на автомобиле в районе часа-полутора.
Дом 165,7 кв.м., построен из газоблоков: тепло зимой, прохладно летом, низкие затраты на отопление. Продуманная планировка, 2 этажа, много света и воздуха. Частично сделан ремонт. Водоснабжение центральное. Канализация. Отопление: электричество + твёрдотопливный котёл.
Участок 9,35 соток, размежёван.
В продаже просторный зимний дом 2023 года постройки в д.Лагоново по отличной цене.
Тихий район с развитой инфраструктурой: в шаговой доступности г.Волосово с магазинами, школами, садами, банками, больницей, поликлиникой, спортивным комплексом, кафе и ресторанами. Но в то же время это приватное место. В пешей доступности ж/д станция, маршрутка до СПБ. До центра СПБ на автомобиле в районе часа-полутора.
Дом 165,7 кв.м., построен из газоблоков: тепло зимой, прохладно летом, низкие затраты на отопление. Продуманная планировка, 2 этажа, много света и воздуха. Частично сделан ремонт. Водоснабжение центральное. Канализация. Отопление: электричество + твёрдотопливный котёл.
Участок 9,35 соток, размежёван. Достаточно места для сада, огорода, беседки или бассейна: реализуйте любые мечты! ИЖС, прописка. Кадастровый номер: 47:22:0614001:33
Документы готовы к сделке. В договоре полная стоимость.
Не упустите шанс купить дом своей мечты по выгодной цене! Звоните и записывайтесь на показ. Показываем по договорённости в удобное время.