Термин "Чистая продажа" означает, что в квартире никто не прописан или
есть куда выписаться и вывезти вещи. Это лучший вариант для покупателя.
Вероятность срыва сделки минимальна.
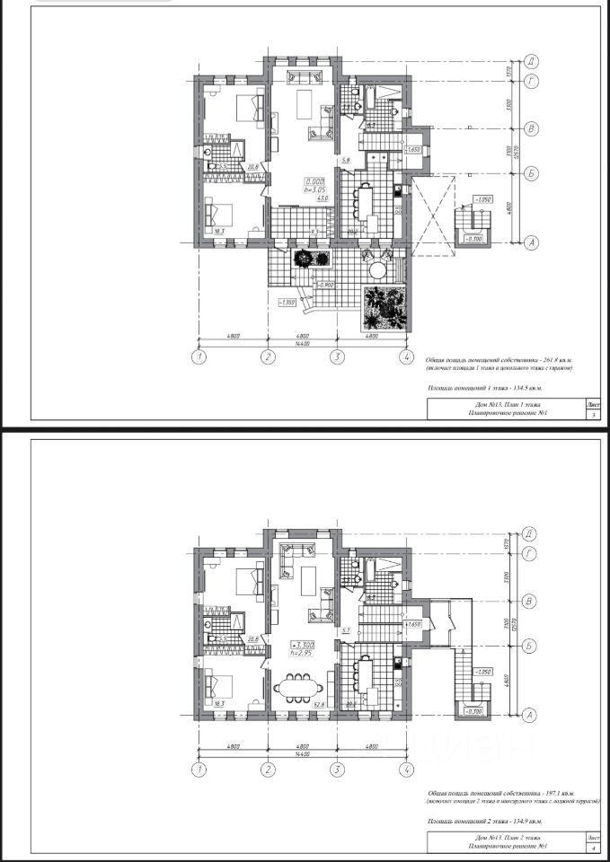
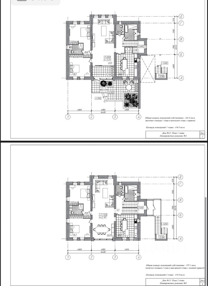
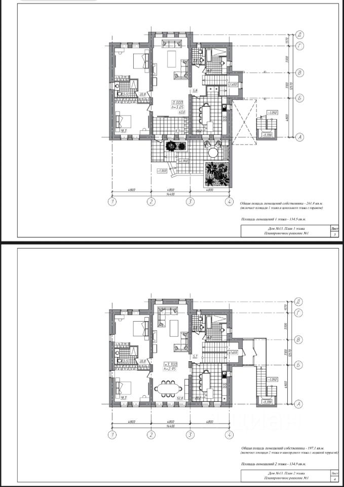
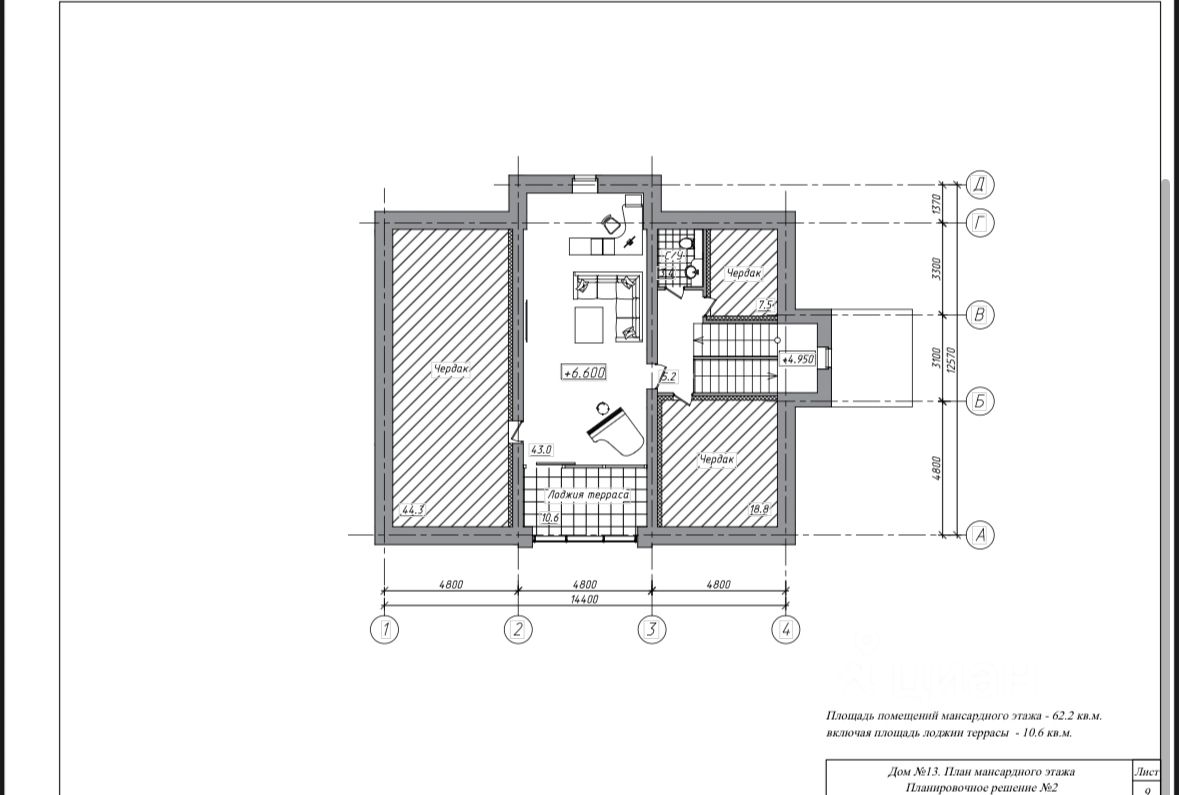
Этажей3
Площадь участка15 соток
Общая площадь425 м2
Материал домакирпич
ЭлектричествоЕсть
Газоснабжениецентральное
Предлагаем к продаже четырехуровневый кирпичный дом 425 кв.м, построенный по спец.заказу и индивидуальному проекту в классическом стиле в зоне индивидуальной жилой застройки. Дом расположен в окрестностях города Коммунар, Гатчинского района, всего в 2 и 6 км от Павловского и Пушкинского парков. В пешей доступности вся инфраструктура города, в 3-х километрах от дома расположен конный клуб. К дому подведены центральные коммуникации, выполнена разводка электричества и водоотведение, установлены электрокотел и резервная емкость для воды из нержавеющей стали. - Договор на электроснабжение с МУП Коммунарские электрические сети на 15 кВт, трехфазный ввод, - Договор на тех.присоединение к сетям газоснабжения с АО Газпром газораспределение Лен.области на пять куб.
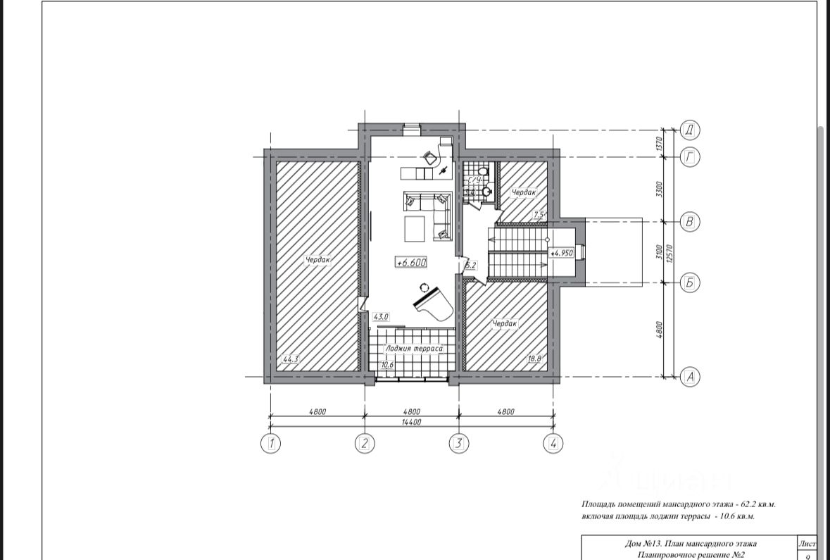
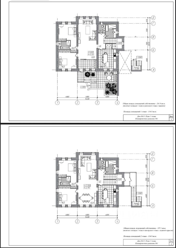
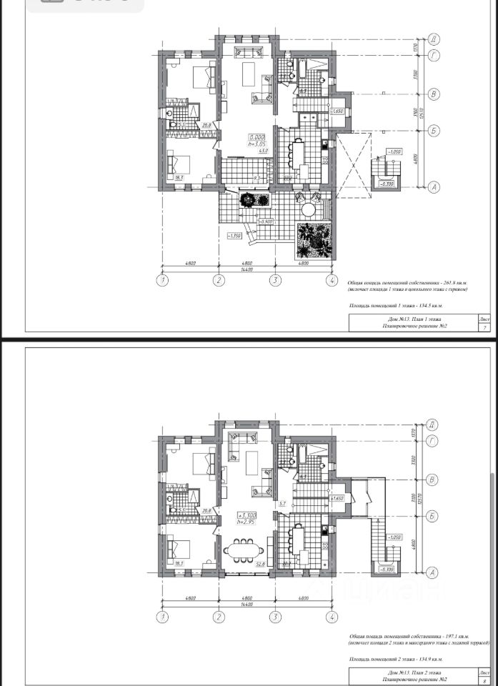
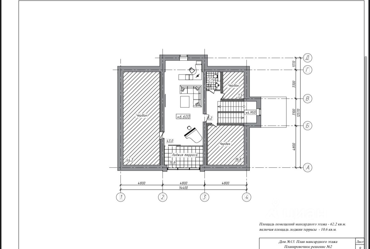
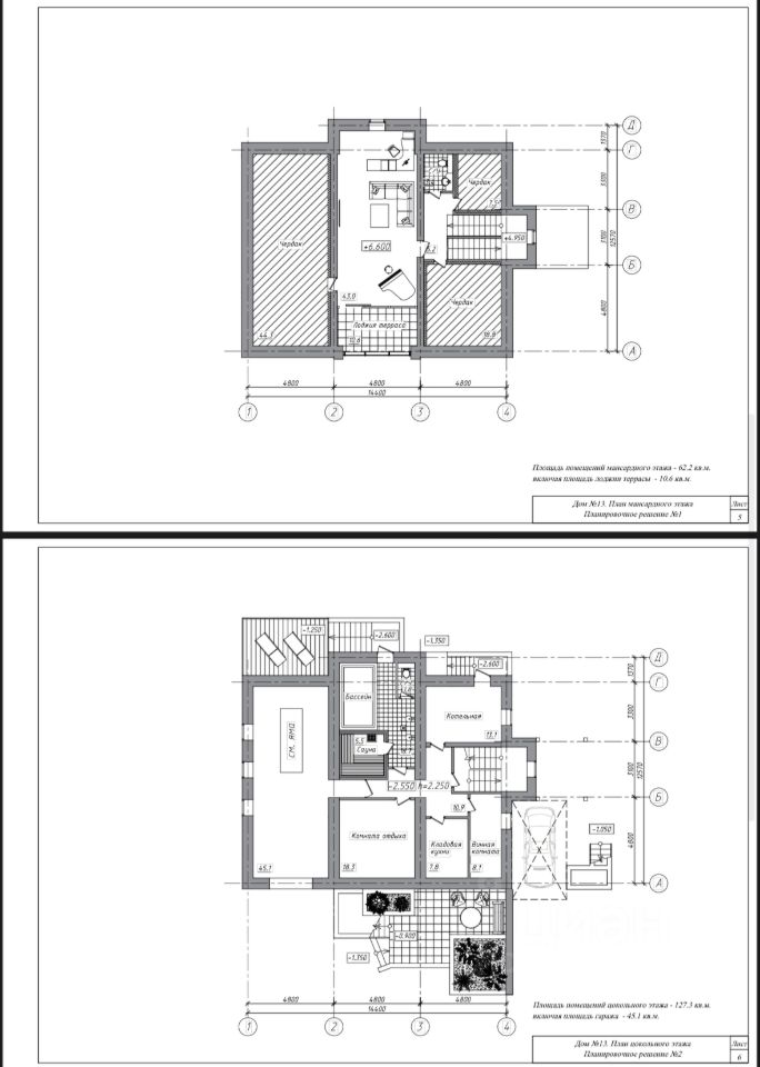
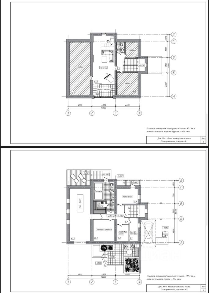
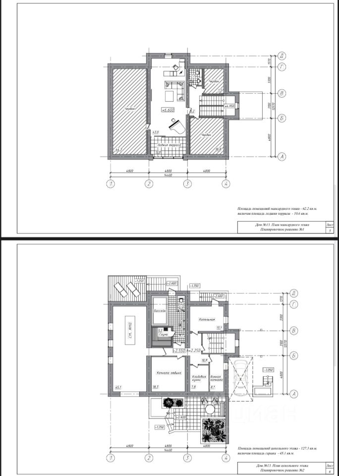
Предлагаем к продаже четырехуровневый кирпичный дом 425 кв.м, построенный по спец.заказу и индивидуальному проекту в классическом стиле в зоне индивидуальной жилой застройки. Дом расположен в окрестностях города Коммунар, Гатчинского района, всего в 2 и 6 км от Павловского и Пушкинского парков. В пешей доступности вся инфраструктура города, в 3-х километрах от дома расположен конный клуб. К дому подведены центральные коммуникации, выполнена разводка электричества и водоотведение, установлены электрокотел и резервная емкость для воды из нержавеющей стали. - Договор на электроснабжение с МУП Коммунарские электрические сети на 15 кВт, трехфазный ввод, - Договор на тех.присоединение к сетям газоснабжения с АО Газпром газораспределение Лен.области на пять куб.м/ч Дом строился для себя, использовались только качественные материалы, толщина стен 3 кирпича( внутренняя и внешняя сторона - отделочный кирпич). В доме сделан дымоход для установки камина, На цокольном этаже предусмотрено помещение для бани или сауны, бетонный бассейн, санузел, гаражи( один с смотровой ямой), погреб в человеческий рост. На втором и третьем этажах есть возможность проживать разным семьям, на лестничном пролете сделаны отдельные входы. Четвертый уровень - мансарда, не учтена в площадь дома, можно использовать, как жилое помещение ( дополнительные 100 метров). Высота мансарды 4 метра. Участок ИЖС 15 соток, правильной формы, сделан дренаж, ограждение - металлическая ажурная решетка. Отличная транспортная доступность., рядом в 10 минутах ходьбы(800м) ж/д станция Антропшино, 25 минут до Витебского вокзала СПб. Есть выезды на Киевское шоссе, Витебский пр., на бесплатную и платную трассу М-11. До парка Ижора 5 минут. В наличии 5 аналогичных домов, расположенных рядом, можно использовать как базу отдыха, пансионат и т.п. Рассмотрим все предложения: ипотека, мат.капитал, рассрочка, лизинг. Просмотр по предварительной договоренности.