Если цена в объявлении изменится, мы сразу сообщим вам об этом на электронную почту.
Нажимая «Подписаться», вы соглашаетесь с правилами.
продам земельный участок, 23 км Мурманского шоссе3 300 000 ₽
12 июня 2025
Дата публикации объявления
Обн. 3 авг 2025
Дата обновления объявления
1
Количество просмотров (+ просмотры за сегодня)
330 000 ₽/сотку
Параметры
Площадь участка10 соток
Канализацияесть
Водаесть
Уникальное предложение в продаже участок площадью 10 соток в полностью застроенном поселке КОМФОРТ-КЛАССА в 20км от КАД с собственным озером и песчаным пляжем!
ПРО ДОКУМЕНТЫ: Один взрослый собственник который будет присутствовать на сделке, ограничений и обременений нет, возможна покупка в ипотеку.
ПРО ЗЕМЕЛЬНЫЙ УЧАСТОК:
Соседи только с двух сторон слева и справа. Весь участок поднят на 2метра, было привезено около 150 камазов грунта Участок не затопляется, и въезд на участок есть комфортный.
Также на территории участка есть два вагончика, один под проживание, второй как склад и еще один туалет и хозблок.
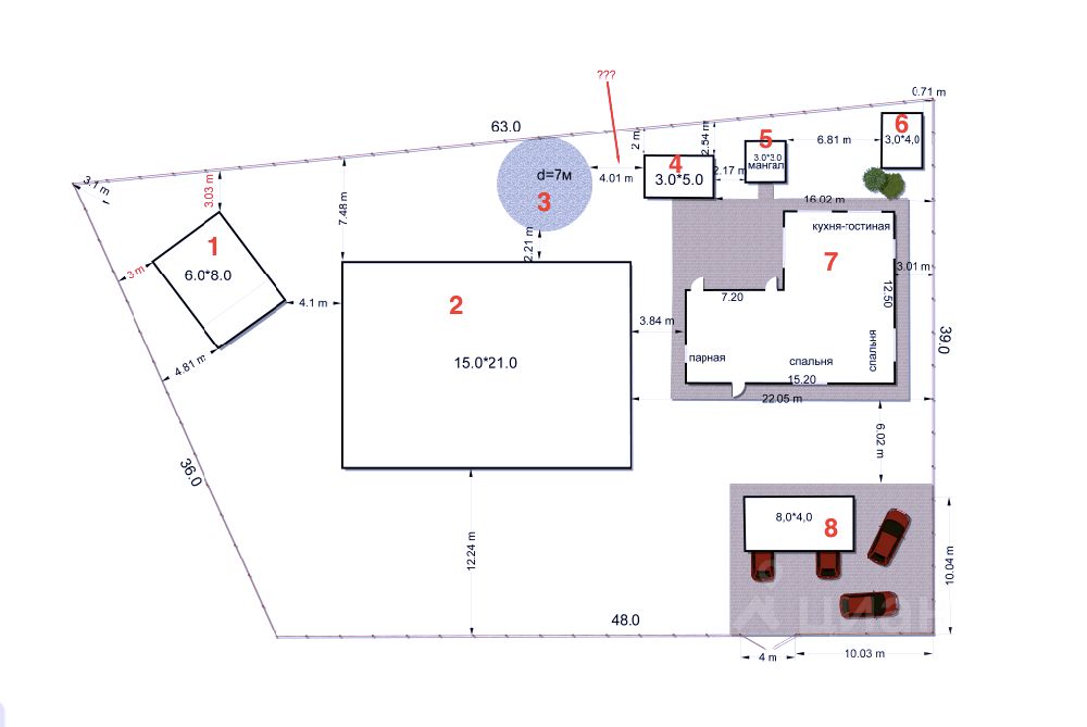
ПЛАН-СХЕМУ как планировали застройку прилагаем в фото объявления, цифры на плане: 1. Гостевой дом 2.
Уникальное предложение в продаже участок площадью 10 соток в полностью застроенном поселке КОМФОРТ-КЛАССА в 20км от КАД с собственным озером и песчаным пляжем!
ПРО ДОКУМЕНТЫ: Один взрослый собственник который будет присутствовать на сделке, ограничений и обременений нет, возможна покупка в ипотеку.
ПРО ЗЕМЕЛЬНЫЙ УЧАСТОК:
Соседи только с двух сторон слева и справа. Весь участок поднят на 2метра, было привезено около 150 камазов грунта Участок не затопляется, и въезд на участок есть комфортный.
Также на территории участка есть два вагончика, один под проживание, второй как склад и еще один туалет и хозблок.
ПЛАН-СХЕМУ как планировали застройку прилагаем в фото объявления, цифры на плане: 1. Гостевой дом 2. Основной дом 3. Костровая зона (лобное место) 4. Беседка 5. Мангальная зона 6. Бассейн 7. Угловая баня 8. Гараж с навесом
Так же на фото прилагаем проекты дома и бани, которые планировали строить, есть свой подрядчик который там и строит, по ценам и вопросам пишите пожалуйста в личные сообщения или звоните.
ПРО КОММУНИКАЦИИ: Электричество уже подведено к участку Газ проходит по границе участка
В поселке есть возможность подключения: - водоснабжения - локальной канализации - интернета
ПРО ИНФРАСТРУКТУРУ: - детский садик на территории поселка (фото в объявлении) - рядом школа ходит школьный автобус от въездной группы поселка - на въездной группе есть продуктовый магазин, доставки озон и вайлдберис и кафе - АЗС в одном КМ от въездной группы
Особое внимание нужно уделить тому, что данный участок находится именно в поселке Балтийская слобода 2 ! Поселок закрытого типа, въезд через КПП, приличная въездная группа, забор по всему периметру поселка и охрана 24/7 и видеонаблюдение.
Внутри поселка почти везде асфальтовая дорога.
На своем озере в поселке летом все купаются и загорают, а зимой катаются на коньках, так же есть спортивная площадка и поле для игры в футбол.
ЗВОНИТЕ и приезжайте посмотреть этот стильный и просторный дом, всё покажем, расскажем и БЕСПЛАТНО ПРОКОНСУЛЬТИРУЕМ по сделке, для Вас этот объект продается БЕЗ КОМИССИИ!!!!
Пишите нам и тут, если у Вас остались вопросы)
ДОБАВЛЯЙТЕ В ИЗБРАННОЕ чтобы не потерять это объявление!