Если цена в объявлении изменится, мы сразу сообщим вам об этом на электронную почту.
Нажимая «Подписаться», вы соглашаетесь с правилами.
продам дом, Дьяконова, 673 600 000 ₽
9 июня 2025
Дата публикации объявления
Обн. 5 ноя
Дата обновления объявления
1
Количество просмотров (+ просмотры за сегодня)
Топ
57 143 ₽/м²
Чистая продажа
Термин "Чистая продажа" означает, что в квартире никто не прописан или
есть куда выписаться и вывезти вещи. Это лучший вариант для покупателя.
Вероятность срыва сделки минимальна.
Площадь участка10 соток
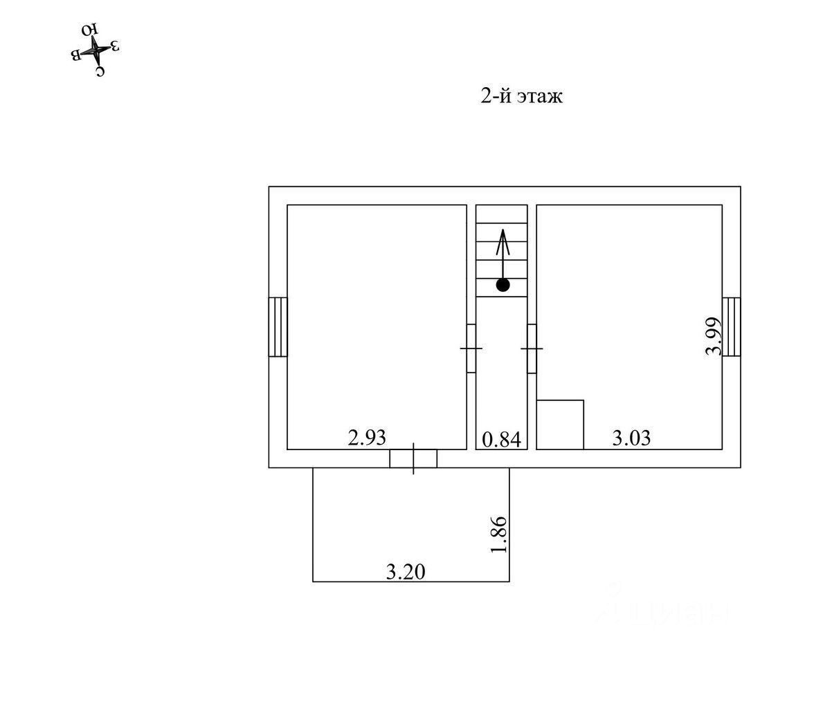
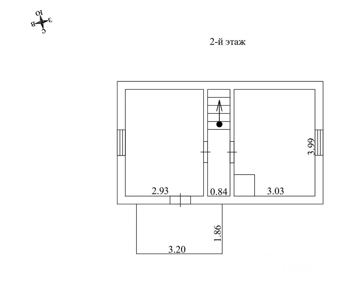
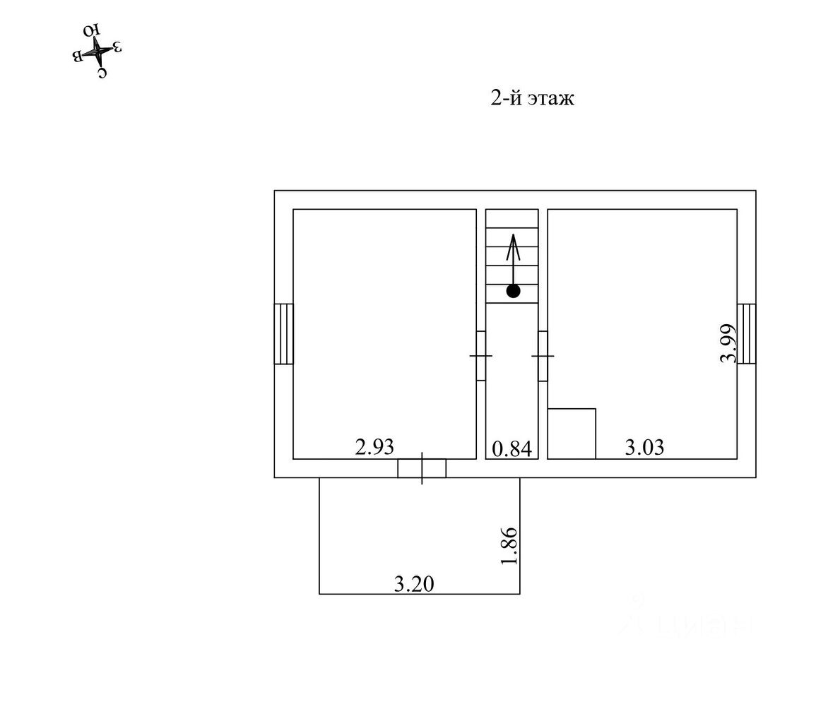
Общая площадь63 м2
Материал домадерево
ЭлектричествоЕсть
Газоснабжениецентральное
Дом в селе Путилово Кировского района ЛО в 70 км от Санкт-Петербурга, на участке 10 соток, ИЖС, собственность, прописаться можно. Дом из бруса (100), два этажа, S 62, 6 м². Первый этаж с эркером. На втором этаже две спальни, балкон. Санузел совмещенный, установлена локальная станция водоотведения. Вода питьевая, заведена в дом - скважина 34 м. На участке плодовые деревья, хоз.блок на свайном фундаменте. Мурманская дорога в отличном состоянии, до поворота к дому - асфальт. Путилово - старинное село, его история начинается с 1600 годов. Достопримечательности: Церковь Тихвинской иконы Божией Матери была построена в 1786 году. Некрополь Тихвинской церкви. Памятник - Бюст императору Александру II. Часовня Спаса Всемилостивого. Населения порядка 1500 человек.
Дом в селе Путилово Кировского района ЛО в 70 км от Санкт-Петербурга, на участке 10 соток, ИЖС, собственность, прописаться можно. Дом из бруса (100), два этажа, S 62, 6 м². Первый этаж с эркером. На втором этаже две спальни, балкон. Санузел совмещенный, установлена локальная станция водоотведения. Вода питьевая, заведена в дом - скважина 34 м. На участке плодовые деревья, хоз.блок на свайном фундаменте. Мурманская дорога в отличном состоянии, до поворота к дому - асфальт. Путилово - старинное село, его история начинается с 1600 годов. Достопримечательности: Церковь Тихвинской иконы Божией Матери была построена в 1786 году. Некрополь Тихвинской церкви. Памятник - Бюст императору Александру II. Часовня Спаса Всемилостивого. Населения порядка 1500 человек. в Путилово — 7 продовольственных магазинов и 2 хозяйственных. Лечебные учреждения: Путиловская амбулатория, 2 фельдшерско-акушерских пункта (д. Валовщина и станция Назия), 2 аптечных пункта (с. Путилово и АЗС). Учреждения культуры: сельский Дом культуры в с. Путилово, 1 отделение центральной межпоселенческой библиотеки. Учреждения образования: Путиловская средняя общеобразовательная школа, детский сад (МДОУ 24). Спортивные сооружения: в с. Путилово — 2 спортзала и 3 спортплощадки.