Если цена в объявлении изменится, мы сразу сообщим вам об этом на электронную почту.
Нажимая «Подписаться», вы соглашаетесь с правилами.
продам дом, Полевая, 308 300 000 ₽
30 мая 2025
Дата публикации объявления
Обн. 29 июля 2025
Дата обновления объявления
Топ
129 485 ₽/м²
Чистая продажа
Термин "Чистая продажа" означает, что в квартире никто не прописан или
есть куда выписаться и вывезти вещи. Это лучший вариант для покупателя.
Вероятность срыва сделки минимальна.
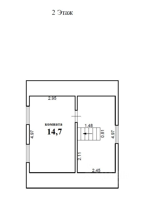
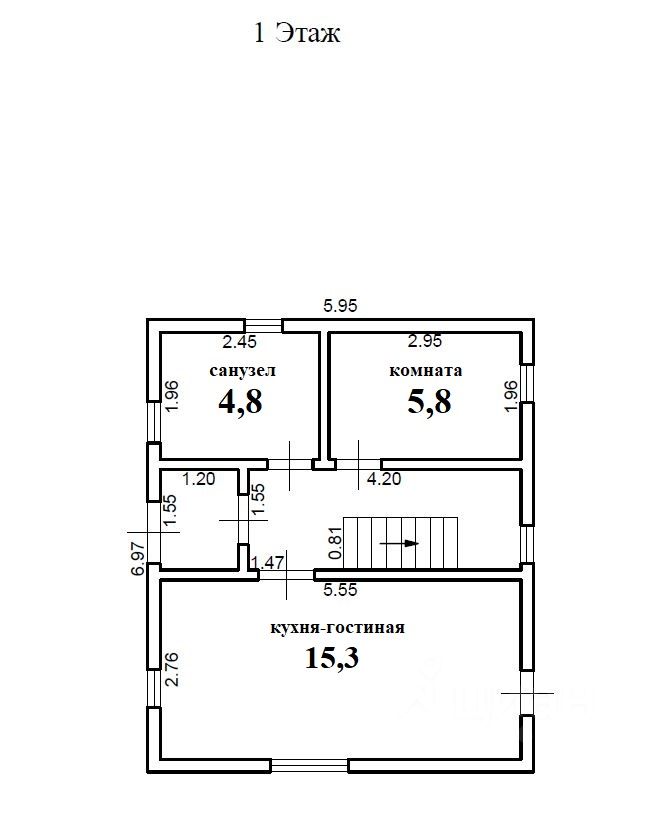
Этажей2
Площадь участка7,3 соток
Общая площадь64,1 м2
ЭлектричествоЕсть
Газоснабжениецентральное
Внесен аванс Продается уютный зимний дом в поселке городского типа Ульяновка. На автомобиле дорога от КАД занимает примерно 30 минут. От жд станции Саблино 10 минут пешком. До города Тосно регулярно ходит маршрутный автобус (остановка 2 минуты пешком).
Хорошая развитая инфраструктура: школа, детские сады, поликлиника детская и взрослая, магазины Пятерочка, Магнит, строительные товары, аптека, пункты выдачи Озон, Яндекс маркет и WB, Музей забытых ремесел, Саблинский водопад, конный клуб.
Дом полностью готов к проживанию. Все коммуникации подключены (газ, вода, электричество, канализация). Высота потолка на 1 этаже 2,7 м, на 2 этаже 2,5 м. Оставляем покупателю кухонную мебель, стенку, спальный гарнитур.
Внесен аванс Продается уютный зимний дом в поселке городского типа Ульяновка. На автомобиле дорога от КАД занимает примерно 30 минут. От жд станции Саблино 10 минут пешком. До города Тосно регулярно ходит маршрутный автобус (остановка 2 минуты пешком).
Хорошая развитая инфраструктура: школа, детские сады, поликлиника детская и взрослая, магазины Пятерочка, Магнит, строительные товары, аптека, пункты выдачи Озон, Яндекс маркет и WB, Музей забытых ремесел, Саблинский водопад, конный клуб.
Дом полностью готов к проживанию. Все коммуникации подключены (газ, вода, электричество, канализация). Высота потолка на 1 этаже 2,7 м, на 2 этаже 2,5 м. Оставляем покупателю кухонную мебель, стенку, спальный гарнитур. Из кухни-гостиной выход на уютную террасу с мебелью из искусственного ротанга. На втором этаже комнату можно разделить на 2 небольшие спальни. Наличие 2 окон это позволяет.
Участок разработан, есть плодовые деревья (яблони и слива), ягодные кусты (смородина. крыжовник), несколько грядок и парник из поликарбоната. Дополнительный источник воды - колодец. Бытовка для хранения хозяйственных мелочей. Мангальная зона для приготовления шашлыков. Забор выполнен из металлического штакетника.
Собственник 1 взрослый. Более 5 лет в собственности. Без обременений. Полная стоимость в договоре купли-продажи. Документы готовы. Легкая встречная покупка (квартира в Колпино). Показы по предварительной договоренности.