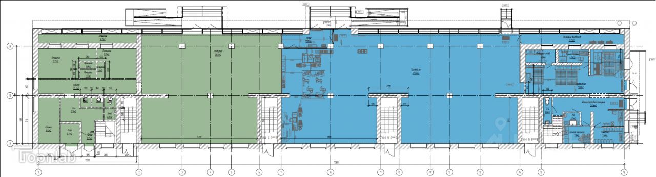
Арт. 105931164 Общая площадь: 808,6 кв.м. (Возможно деление объекта)
Этажность: 1 этаж
Мощность: По заявке кВт
Количество входов: 2 с улицы
Высота потолков: 4 м
Назначение: свободное
Есть парковка
Есть действующий арендатор: сеть магазинов ''Пятерочка''









