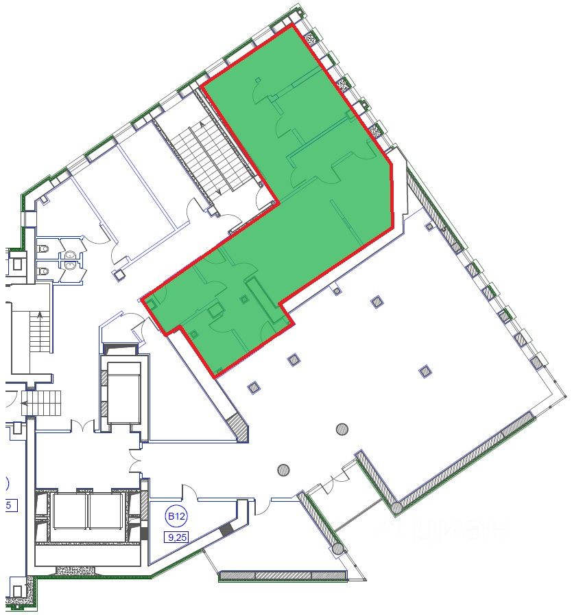
Предлагается в аренду офисное помещение по адресу: ул. Маршала Говорова, 49 А Помещение свободного назначения 103,5 кв.м. Планировка: кабинетная. Отделка: пол плитка, стены плитка на высоту 2,5 м. Окна металлопластиковые стеклопакеты, двери финские белые. Инженерное оснащение: приточно-вытяжная вентиляция, электрическая сеть в настенных коробах по периметру помещения, потолочные светодиодные светильники, радиаторы отопления, пожарная сигнализация, речевое оповещение. Дополнительно: уборка, парковка, интернет, телефония, КУ. Условия договора: 11 месяцев, предоплата за первый и последний месяц. Интернет провайдеры: Обит.
Предлагается в аренду офисное помещение по адресу: ул. Маршала Говорова, 49 А Помещение свободного назначения 103,5 кв.м. Планировка: кабинетная. Отделка: пол плитка, стены плитка на высоту 2,5 м. Окна металлопластиковые стеклопакеты, двери финские белые. Инженерное оснащение: приточно-вытяжная вентиляция, электрическая сеть в настенных коробах по периметру помещения, потолочные светодиодные светильники, радиаторы отопления, пожарная сигнализация, речевое оповещение. Дополнительно: уборка, парковка, интернет, телефония, КУ. Условия договора: 11 месяцев, предоплата за первый и последний месяц. Интернет провайдеры: Обит. Вход в здание: для клиентов - по документу, для арендаторов - по пропуску Удобное расположение относительно транспортной развязки и объектов деловой инфраструктуры позволяет достичь исторического центра Петербурга за 10 минут. Аренда помещения от собственника Развитая внутренняя инфраструктура: охраняемая парковка, надежная охрана, клининговые услуги, конференц-зал. Покажем офис, ответив на все ваши вопросы.
Подробнее