Если цена в объявлении изменится, мы сразу сообщим вам об этом на электронную почту.
Нажимая «Подписаться», вы соглашаетесь с правилами.
продам дом, д. Озерки, 22в19 300 000 ₽
25 апр 2025
Дата публикации объявления
Обн. вчера
Дата обновления объявления
5
Количество просмотров (+ просмотры за сегодня)
Топ
Спецпредложение
Выделение цветом
Турбо x2
Турбо x4
Турбо x8
115 569 ₽/м²
Чистая продажа
Термин "Чистая продажа" означает, что в квартире никто не прописан или
есть куда выписаться и вывезти вещи. Это лучший вариант для покупателя.
Вероятность срыва сделки минимальна.
Этажей1
Площадь участка12 соток
Общая площадь167 м2
ЭлектричествоЕсть
Газоснабжениецентральное
Продается дом из газобетона с идеальной планировкой в новом клубном поселке ''Озерный градъ''.
Дом готов! вышлем больше реальных фото
Старт продаж! ИЖС! Ипотека!
Только 8 участков рядом с живописным озером, никакой массовости.
Единый архитектурный стиль, добрососедство, 10-15 минут до города.
На этапе старта продаж показы исключительно по записи.
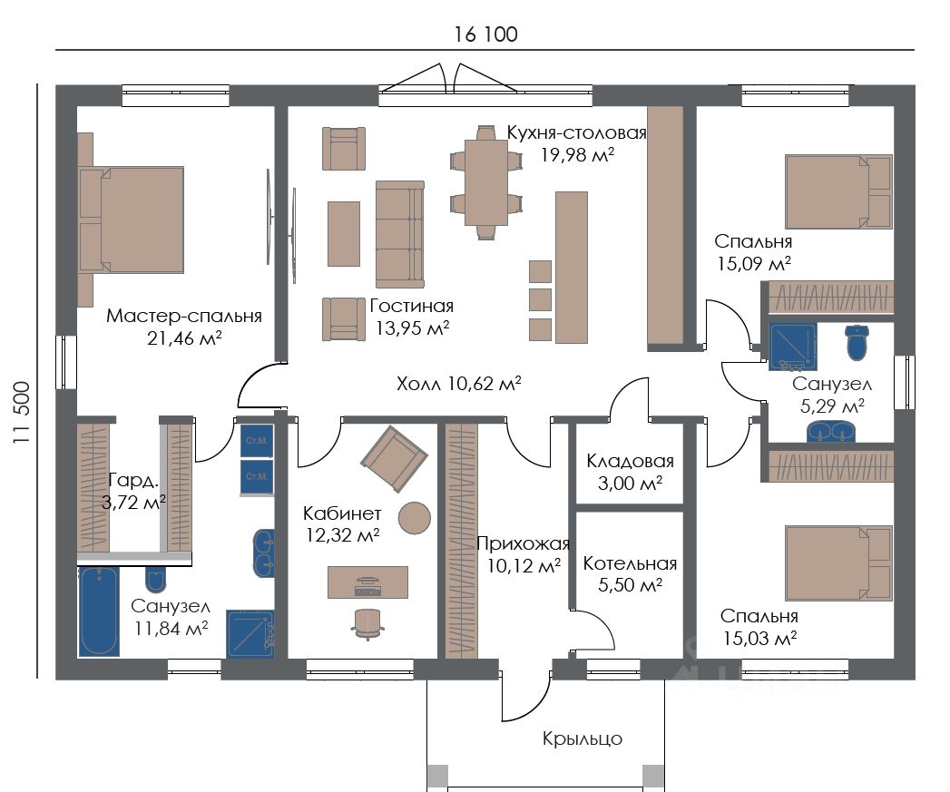
Дом по проекту ''Норд'' 167 м2 на 12 сотках с идеальной продуманной планировкой, уже построен и готов к показу.
- просторная кухня-гостиная 34 м² с выходом на террасу
- две спальни по 15 м²
- мастер-спальня с гардеробом и своим санузлом 37 м²
- кабинет/гостевая спальня 12 м²
- отдельная кладовая у кухни!
Продается дом из газобетона с идеальной планировкой в новом клубном поселке ''Озерный градъ''.
Дом готов! вышлем больше реальных фото
Старт продаж! ИЖС! Ипотека!
Только 8 участков рядом с живописным озером, никакой массовости.
Единый архитектурный стиль, добрососедство, 10-15 минут до города.
На этапе старта продаж показы исключительно по записи.
Дом по проекту ''Норд'' 167 м2 на 12 сотках с идеальной продуманной планировкой, уже построен и готов к показу.
- просторная кухня-гостиная 34 м² с выходом на террасу
- две спальни по 15 м²
- мастер-спальня с гардеробом и своим санузлом 37 м²
- кабинет/гостевая спальня 12 м²
- отдельная кладовая у кухни!
- прихожая, котельная, холл, санузел
Современная планировка создавалась архитекторами так, чтобы отсутствовали любые потери полезной площади!
Дома поселка расположены в д. Озерки на Колтушкской возвышенности. Граничит с поселками: Хапо-Ое, Мяглово, Новая Пустошь.
Очень удачная локация! ВСЕ участки высокие и сухие
- 10 мин и 12 км до Санкт-Петербурга по Мурманскому шоссе
- 15 мин. до м. Дыбенко или м. Ладожская (ходят электрички и маршрутки от поселка)
- 300 метров до чистейшего живописного озера с песочным пляжем! в котором можно купаться и ловить рыбу
- асфальтовая дорога до самого дома, никакой грунтовки
- рядом смешанный лес с большим количеством грибов и ягод
- до Коркинского озера 15 мин
- до горнолыжного курорта ''Лазурные озера'' 15 мин
- ''Пятерочка'', ''Магнит'', пекарни , аптека, пункты выдачи Wildberries и Ozon, мясные лавки, кафе в пешей доступности в 200 метрах
- Менее 2 км до детского сада Разметелевская школа (дошкольное учреждение), школа в Разметелево
Дом 167 м2 из газобетона 400 мм, на фундаментной плите 300 мм. Фасад: штукатурка и планкен.
Все коммуникации, включая магистральный газ. Строим с упором на качество с соблюдением всех строительных норм!
Красивые и комфортные дома во Всеволожском районе с отличной планировкой и панорамными окнами. Записывайтесь на индивидуальный показ!