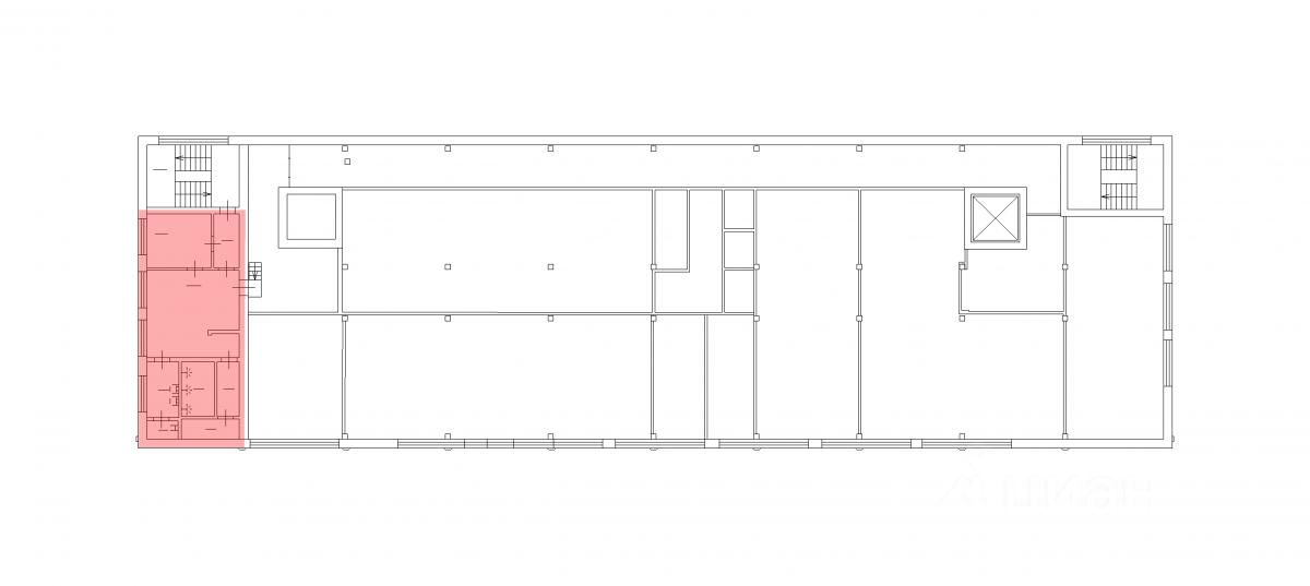
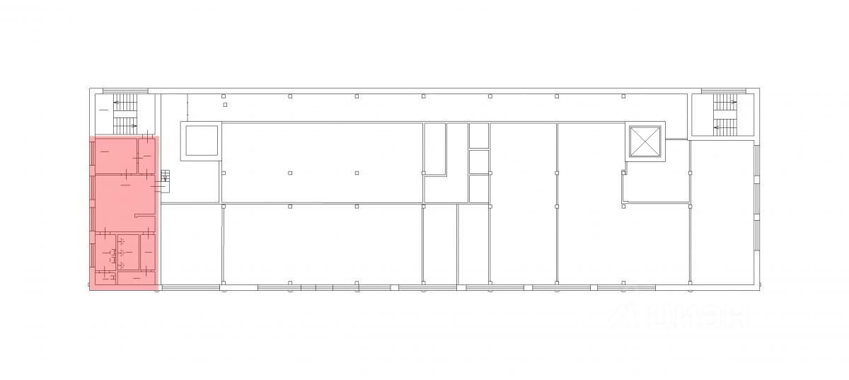
Аренда блока помещений под мастерскую
в Кировском районе города на улице Швецова, дом 38. Находится на 4 этаже административного здания на территории технопарка ''Нарвский''. Высота потолка до перекрытия - 2.1 м. Отделка: на стенах кафельная плитка, линолеум на полу. Оснащение: ХВС, водоотведение, отопление, освещение, пожарная сигнализация. Охрана осуществляется круглосуточно.






